Erweiterte Suche
Suchagent aktivieren
Exklusive Anzeigen

Neubau Aktion! 130m2 Nutzfläche Garage 28 m2, 347.000 Euro

€ 347.000,00

,

130
zu Favoriten hinzufügen
teilen
Suchergebnisse

Objektbeschreibung

Preisreduziert seit 1.2.2026 NEUER Preis 347.000 Euro (Fertigstellung ca 12.000 Euro)

 

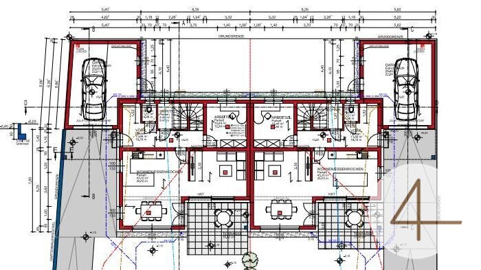
Dieses exklusive Angebot, bietet Ihnen eine Wohnnutzfläche von 130 m².

Eine Luftwärmepumpe sorgt für eine kostengünstige Heizung und ein hochwertiger Massivbau für ein zuverlässiges und langlebiges Zuhause.

Eine Garage und ein Stellplatz sind ebenfalls vorhanden, sodass Sie Ihr Auto
Mehr lesen

Bezirk:
Bundesland:
PLZ: 4776
Land: Österreich
Objekt ID: 984088
Preis: € 347.000
Nutzfläche: 130 m2
Gesamtfläche: 469 m2
Ziimmer insgesamt: 0
Schlafzimmer: 0
Badezimmer: 0
Nutzungsart: Wohnen
Provisionspflichtig: ja
Provision: 3% des Kaufpreises zzgl. 20% USt.
HWB: 41 kWh/(m²*a)
HWB Klasse: B
FGEE: 0.68
Energieausweis Art: Bedarf
Luft-Wärmepumpe
Massiv
Massivbauweise

Ähnliche Objekte

vergleichen
Hausansicht Gartenseite

Top gepflegtes, voll unterkellertes Haus mit...

€ 390.000
3
Schlafzimmer
1
Badezimmer
95 m2
Größe
Mai 4, 2026

4immobilien GmbH
Thomas Mader

Kontaktaufnahme









    • Preisinformation
      Objektpreis347.000,00 €

    Vergleichen