Objektbeschreibung
Erstklassige Ordination/Praxis im MedPoint Steyr, provisionsfrei zu mieten in 4400 Steyr!
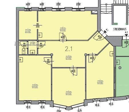
Das neu entstandene Ärzte- und Gesundheitszentrum MedPoint Steyr bietet auf einer Maximalfläche von derzeit ca. 650 m² die Möglichkeit zur Anmietung von Ordinationsräumlichkeiten zwischen 25 m² und 220 m² pro Etage. Auch eine noch kleinteiligere Nutzung ist je nach
Mehr lesen
Objekt ID: 987587
Nutzfläche: 0 m2
Gesamtfläche: 108 m2
Ziimmer insgesamt: 0
Schlafzimmer: 0
Badezimmer: 0
Nutzungsart: Gewerbe
HWB: 76 kWh/(m²*a)
HWB Klasse: C
FGEE: 1.78
Energieausweis Art: Bedarf
Beziehbar: nach Vereinbarung
Etage: 2
Personenaufzug
Gas
Zentralheizung

















