Objektbeschreibung
Neubau in Malinska – Doppelhaushälfte mit Pool und Garten
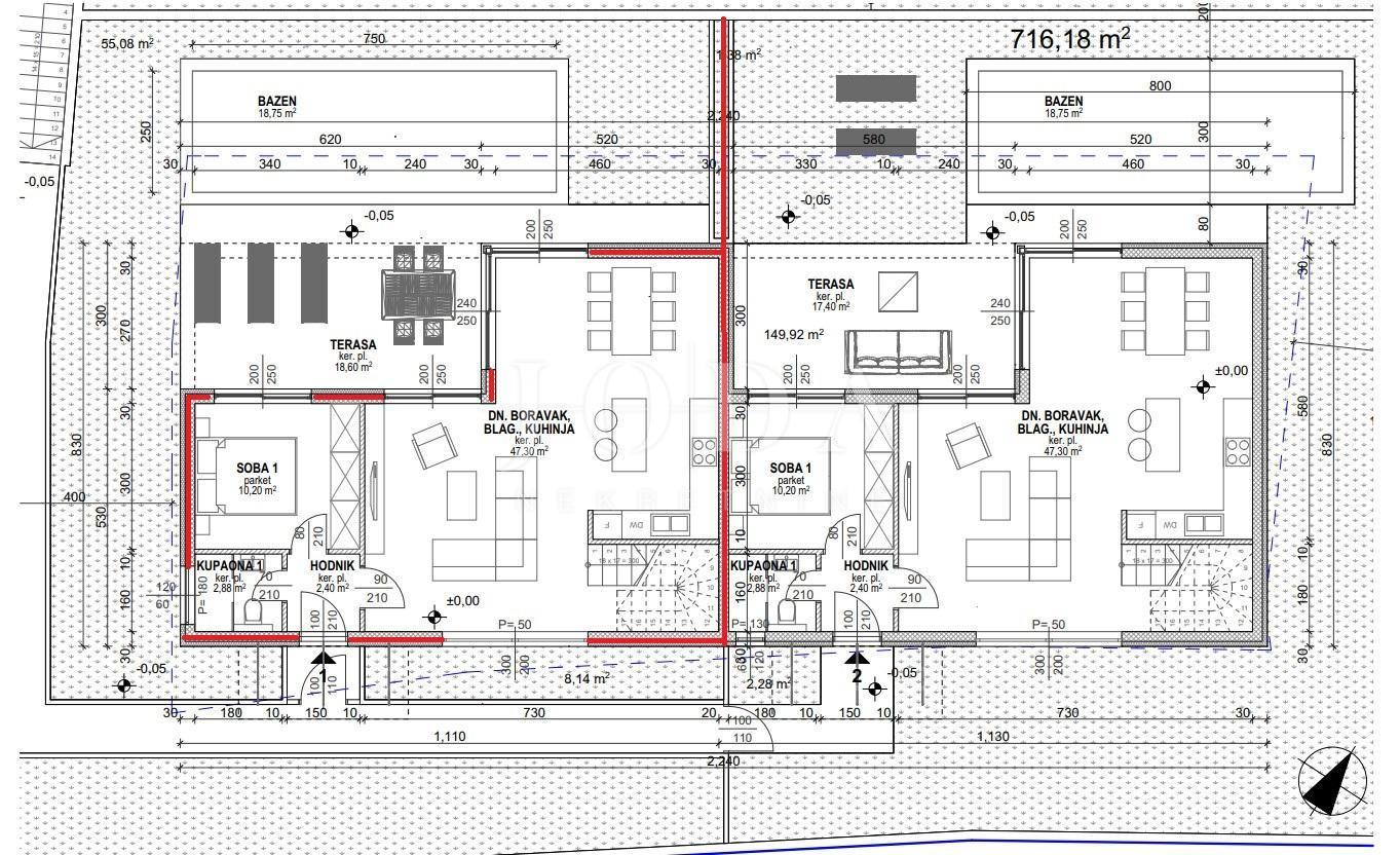
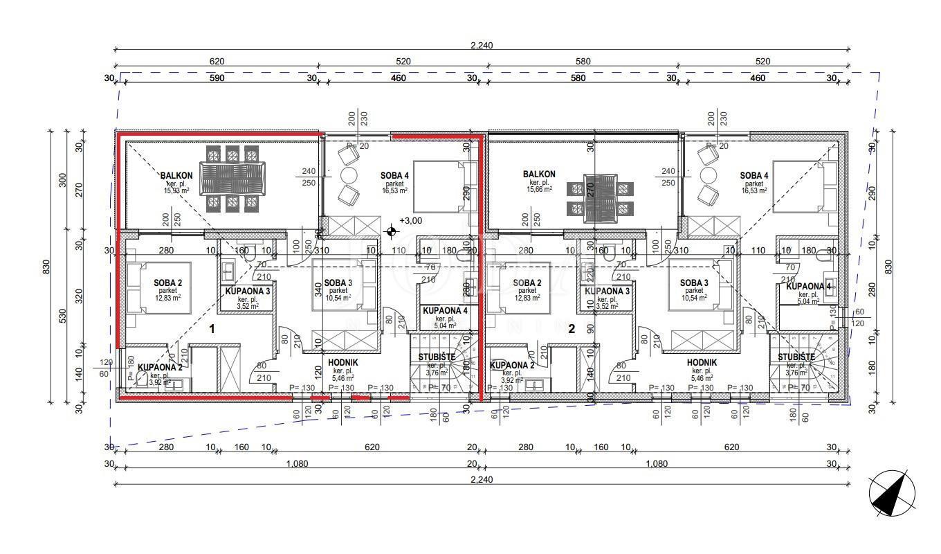
Das Haus hat eine Fläche von 159 m2 und erstreckt sich über das Erdgeschoss und den ersten Stock. Im Erdgeschoss ist die Eingangshalle, ein Schlafzimmer mit Bad und ein großer offener Raum, der das Wohnzimmer mit Küche und Esszimmer vereint sowie
Mehr lesen
Objekt ID: 991145
Preis: € 620.000
Nutzfläche: 0 m2
Gesamtfläche: 200 m2
Ziimmer insgesamt: 5
Schlafzimmer: 5
Badezimmer: 4
Nutzungsart: Wohnen
Provisionspflichtig: ja













