Objektbeschreibung
Erstklassige Geschäftsfläche mit Lager und Büro im MedPoint Steyr in frequentierter Lage, provisionsfrei zu mieten in 4400 Steyr
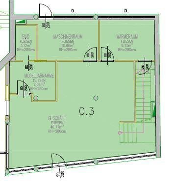
Im neu entstandenen Ärzte- und Gesundheitszentrum MedPoint Steyr befindet sich diese Geschäftsfläche, die sich insbesondere für den Verkauf von medizinischen Produkten eignet. Die 200,11 m² große Fläche verfügt über einen ca. 77
Mehr lesen
Dokumente
Objekt ID: 1006422
Nutzfläche: 0 m2
Gesamtfläche: 150 m2
Ziimmer insgesamt: 0
Schlafzimmer: 0
Badezimmer: 0
Miete (netto) €: 1805.28
USt €: 445.06
Nutzungsart: Gewerbe
Kaution: 3 Bruttomonatsmieten
HWB: 164 kWh/(m²*a)
HWB Klasse: D
FGEE: 1.61
Energieausweis Art: Bedarf
Beziehbar: nach Vereinbarung
WC: 2
Personenaufzug
Gas
Zentralheizung





