Objektbeschreibung
Die Wohnung D1 befindet sich im dritten Stock eines modernen Wohngebäudes und überzeugt durch einen funktionalen Grundriss sowie großzügige Außenbereiche. Netto-Wohnfläche: 145,87 m².
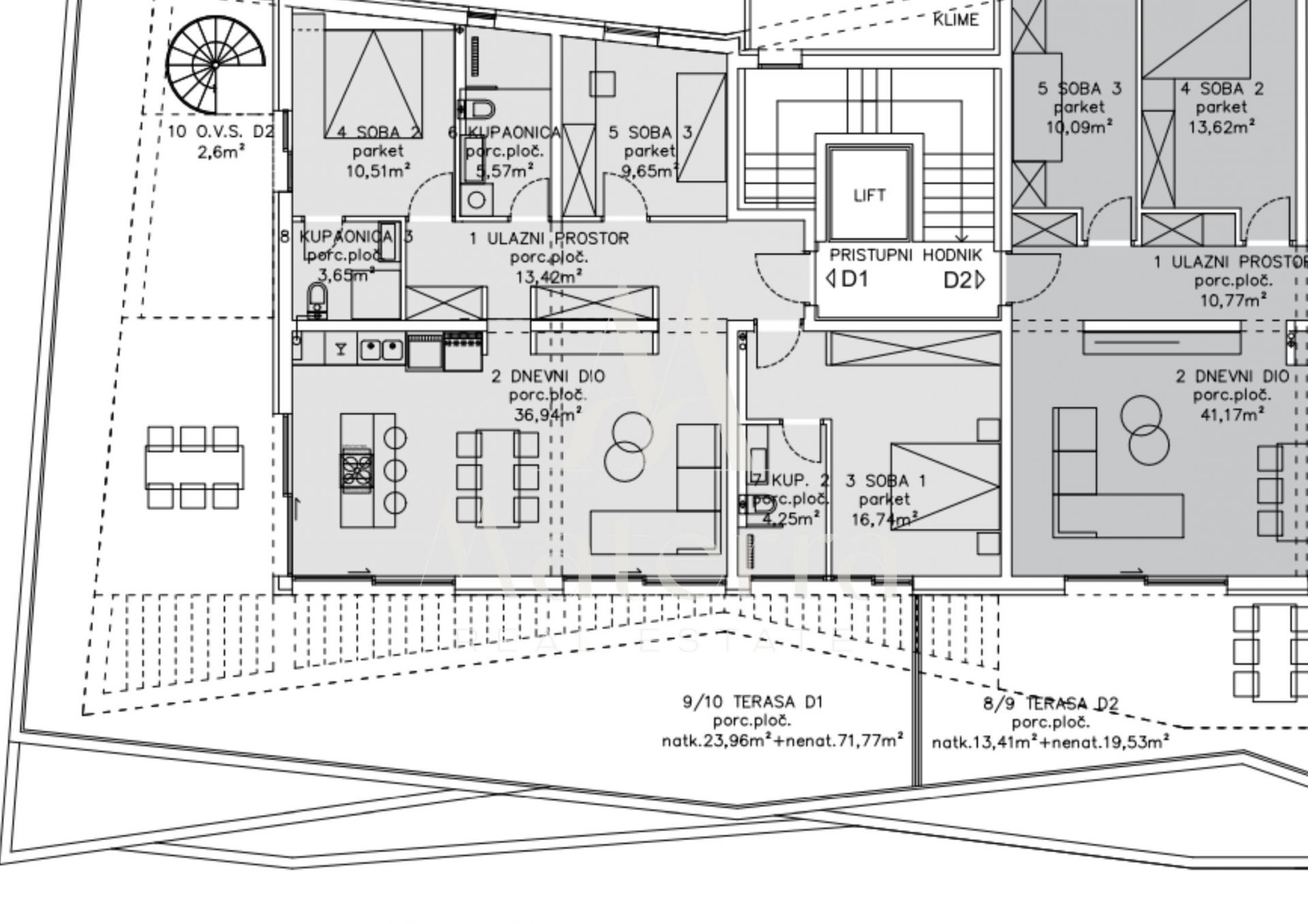
Grundriss und Raumaufteilung:
Eingangsbereich – 13,42 m²
Schlafzimmer 1 – 16,74 m²
Schlafzimmer 2 – 10,51 m²
Schlafzimmer 3 – 9,65 m²
Badezimmer 1 – 5,57 m²
Mehr lesen
Objekt ID: 1024929
Preis: € 790.000
Nutzfläche: 0 m2
Gesamtfläche: 0 m2
Ziimmer insgesamt: 4
Schlafzimmer: 4
Badezimmer: 3
Nutzungsart: Wohnen
Provisionspflichtig: ja
















