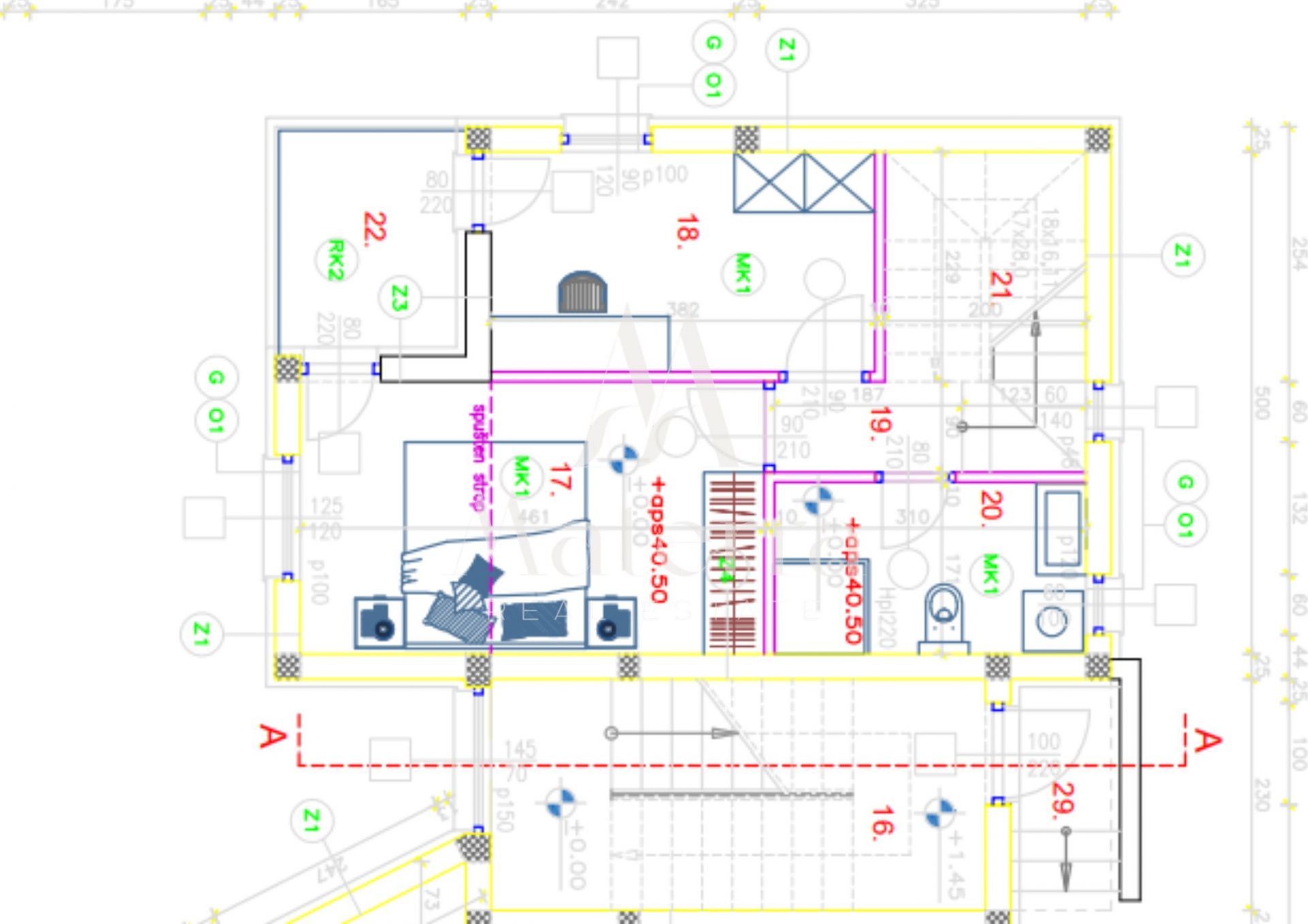
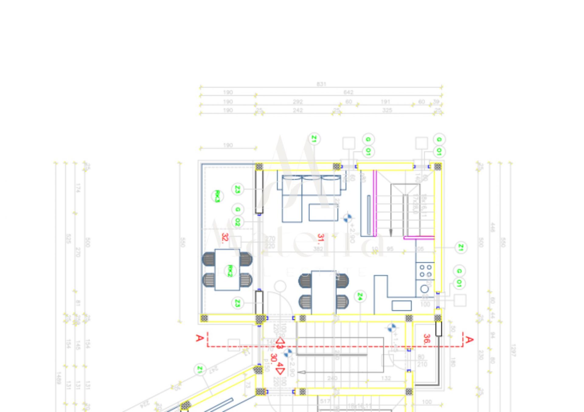
Objektbeschreibung
Gesamtnutzfläche: 74,82 m²
Ausrichtung: Südwest
Geplanter Einzug: Anfang 2026
Zum Verkauf steht eine moderne Maisonette-Wohnung in einer attraktiven Lage von Primošten, die sich in einem hochwertigen Neubau befindet, derzeit im Bau. Die Wohnung überzeugt durch eine durchdachte Raumaufteilung, hochwertigen Baustandard und einen herrlichen Blick auf das Meer und
Mehr lesen
Objekt ID: 1126618
Preis: € 299.000
Nutzfläche: 0 m2
Gesamtfläche: 0 m2
Ziimmer insgesamt: 3
Schlafzimmer: 3
Badezimmer: 1
Nutzungsart: Wohnen
Provisionspflichtig: ja





