Objektbeschreibung
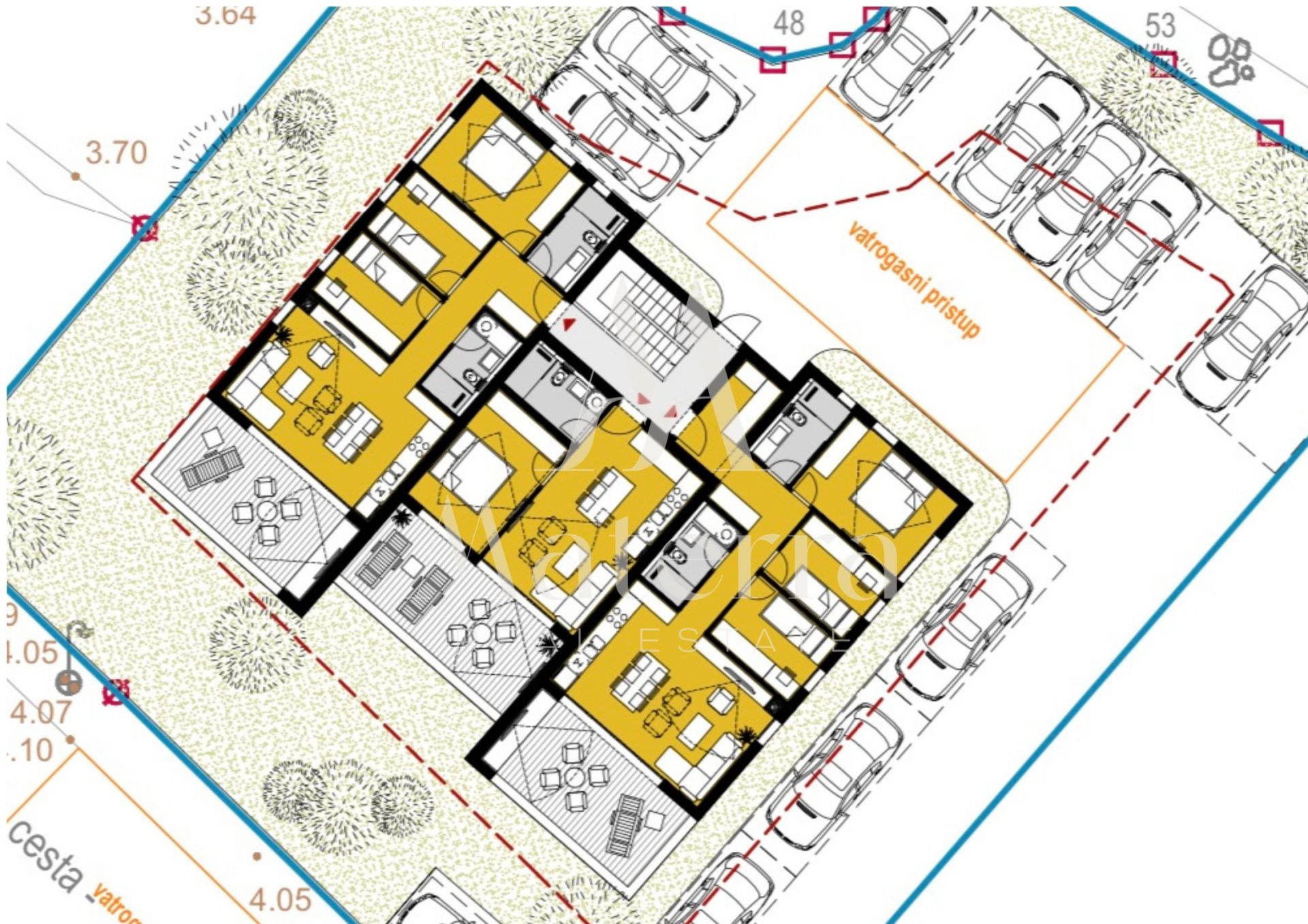
Zum Verkauf steht die Wohnung mit der Bezeichnung S1, gelegen im Erdgeschoss eines modernen Neubaus im Ortsteil Srima, unweit von Vodice. Die Gesamtfläche der Wohnung beträgt 94,88 m² und sie besteht aus einem offenen Wohnbereich mit Küche und Esszimmer, Flur, drei Schlafzimmern, zwei Badezimmern sowie einer überdachten Terrasse von 19,80
Mehr lesen
Objekt ID: 1173834
Preis: € 299.000
Nutzfläche: 0 m2
Gesamtfläche: 0 m2
Ziimmer insgesamt: 4
Schlafzimmer: 4
Badezimmer: 2
Nutzungsart: Wohnen
Provisionspflichtig: ja
WC: 2









