Objektbeschreibung
Rovinj, luxuriöse Maisonette-Wohnung mit direktem Blick auf die Stadt und das Meer
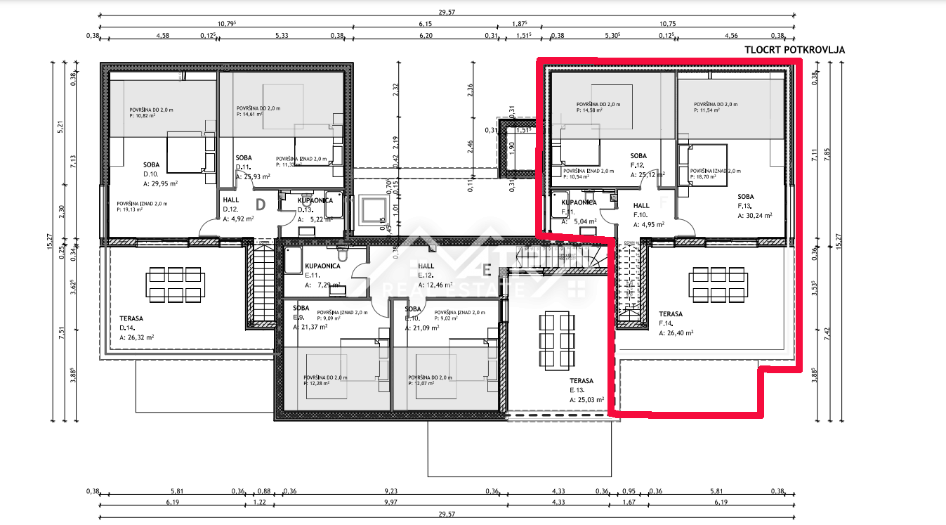
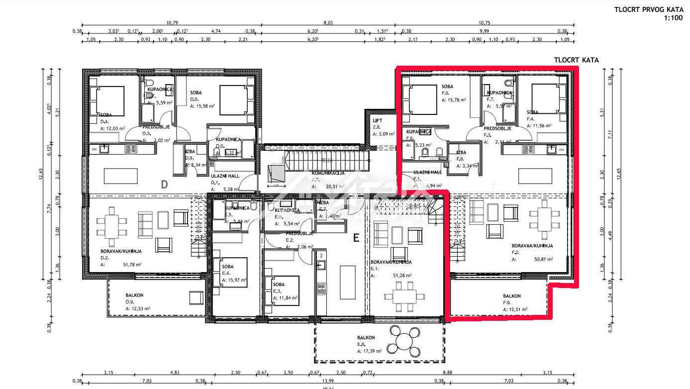
In einer der schönsten Städte an der Adriaküste, Rovinj, bekannt für seine malerischen Gassen, die historische Altstadt und das kristallklare Meer, steht eine luxuriöse Maisonette-Wohnung mit 171 m², einschließlich Terrassen, zum Verkauf, nur wenige Minuten vom Strand entfernt.
Mehr lesen
Objekt ID: 1160790
Preis: € 1.030.000
Nutzfläche: 0 m2
Gesamtfläche: 0 m2
Ziimmer insgesamt: 5
Schlafzimmer: 5
Badezimmer: 0
Nutzungsart: Wohnen
Provisionspflichtig: ja











