Objektbeschreibung
Rovinj, luxuriöse Maisonette-Wohnung nur 150 m vom Meer entfernt
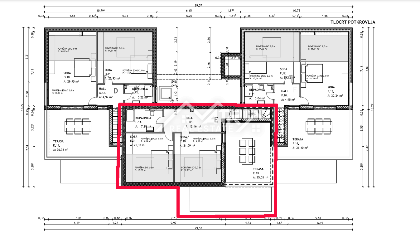
In einer der schönsten Städte an der Adriaküste, Rovinj, bekannt für seine malerischen Gassen, historischen Charme und das kristallklare Meer, steht eine luxuriöse Maisonette-Wohnung mit einer Fläche von 159 m², einschließlich Terrassen, nur wenige Minuten vom Strand entfernt zum Verkauf. Dieses
Mehr lesen
Objekt ID: 1160799
Preis: € 950.000
Nutzfläche: 0 m2
Gesamtfläche: 0 m2
Ziimmer insgesamt: 5
Schlafzimmer: 5
Badezimmer: 0
Nutzungsart: Wohnen
Provisionspflichtig: ja













