Objektbeschreibung
An einem attraktiven Standort in der Stadt Cres verkaufen wir die Wohnung S3 im ersten Stock eines modernen Neubaus – ideal für ein ruhiges Familienleben oder als Investition im Tourismusbereich.
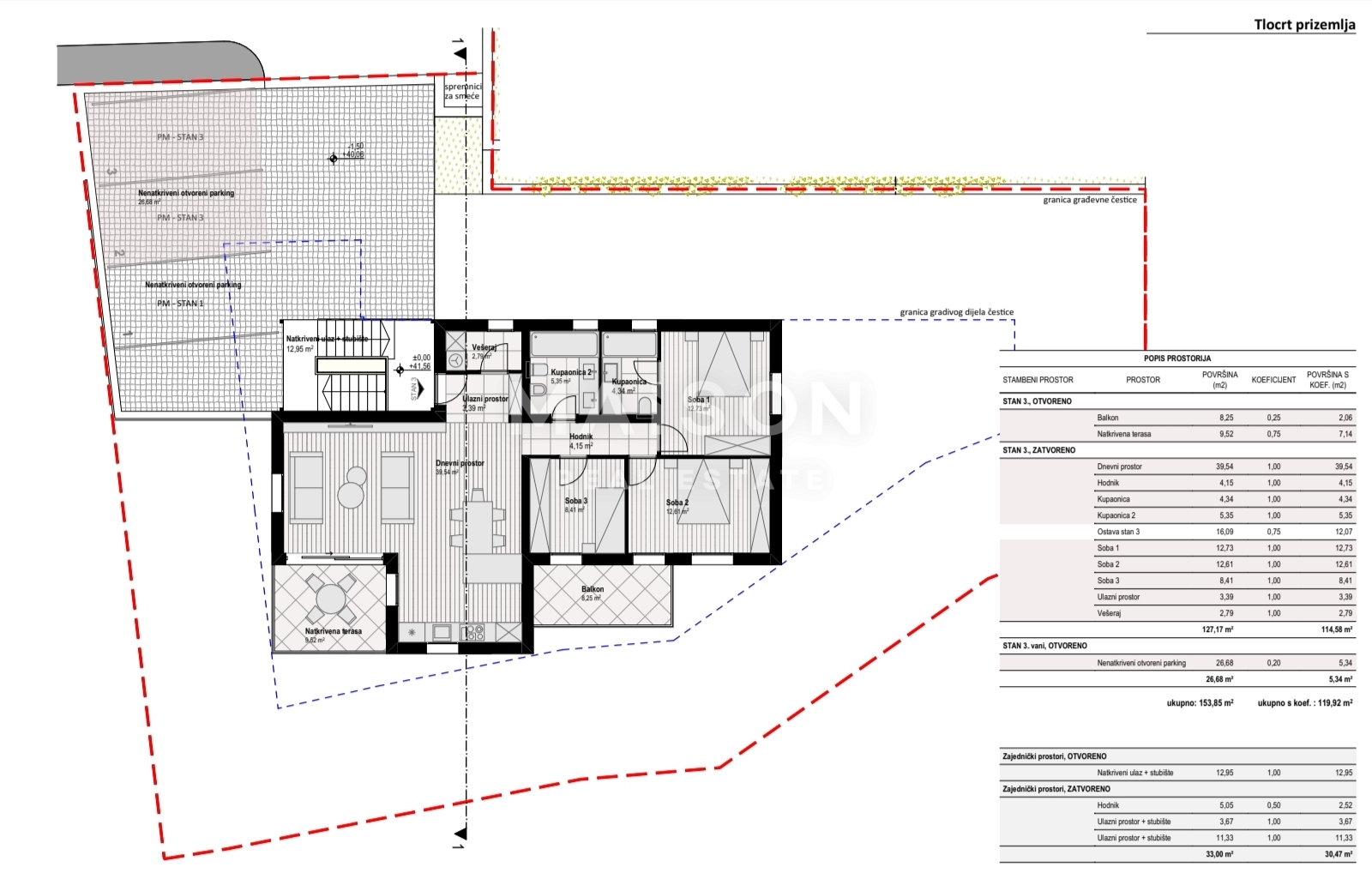
Die Wohnung hat eine Gesamtfläche von 119,92 m² und besteht aus drei Schlafzimmern, einem Wohnzimmer mit Küche und Essbereich, einem
Mehr lesen
Objekt ID: 1224750
Preis: € 498.000
Nutzfläche: 0 m2
Gesamtfläche: 0 m2
Ziimmer insgesamt: 4
Schlafzimmer: 4
Badezimmer: 2
Nutzungsart: Wohnen
Provisionspflichtig: ja









