Objektbeschreibung
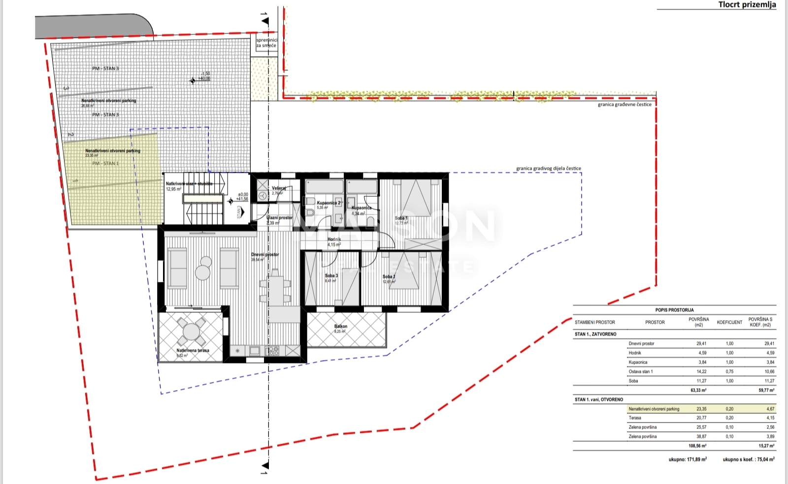
An einem attraktiven Standort in der Stadt Cres verkaufen wir die Wohnung S1 im Erdgeschoss eines modernen Neubaus – ideal für ein ruhiges Familienleben oder als Investition in den Tourismus.
Die Wohnung hat eine Gesamtfläche von 75,04 m² und besteht aus einem Schlafzimmer, einem Wohnzimmer mit Küche und Essbereich, einem
Mehr lesen
Objekt ID: 1224757
Preis: € 312.000
Nutzfläche: 0 m2
Gesamtfläche: 0 m2
Ziimmer insgesamt: 2
Schlafzimmer: 2
Badezimmer: 1
Nutzungsart: Wohnen
Provisionspflichtig: ja









