Erweiterte Suche
Suchagent aktivieren
Exklusive Anzeigen

Gartenparadies

€ 559.500,00

,

904 Zimmer
zu Favoriten hinzufügen
teilen
Suchergebnisse

Objektbeschreibung

EIN NEUES KAPITEL BEGINNT – MITTEN IN WIENER NEUSTADT

Inmitten der lebendigen Kulisse von Wiener Neustadt entsteht ein Wohnprojekt, das zeitgemäßes Leben neu definiert. Erstbezug, durchdachte Architektur und eine zentrale Lage schaffen den idealen Rahmen für ein Zuhause, das sowohl Komfort als auch Charakter bietet. Es eröffnet Ihnen die Chance,
Mehr lesen

Bezirk:
Bundesland:
PLZ: 2700
Land: Österreich
Objekt ID: 1303816
Preis: € 559.500
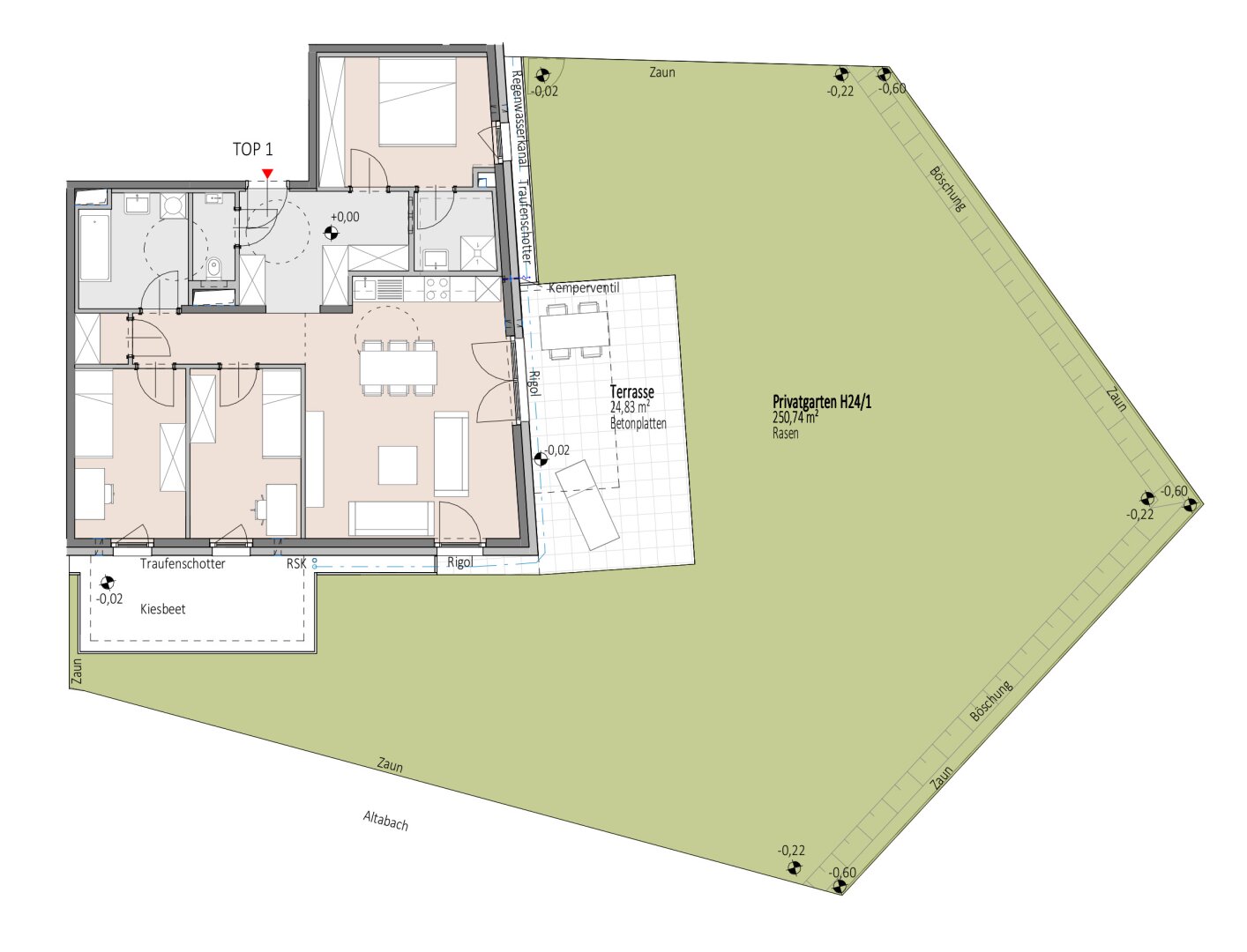
Nutzfläche: 90 m2
Gesamtfläche: 0 m2
Ziimmer insgesamt: 4
Schlafzimmer: 4
Badezimmer: 2
Betriebskosten €: 541.94
Nutzungsart: Wohnen
HWB: 27,10 kWh/(m²*a)
HWB Klasse: B
FGEE: 0.65
E-Ausweis Gültig Bis:: 24.07.2030
Energieausweis Art: Bedarf
Balkon/Terrassen - Fläche: 24
Beziehbar: Herbst ´25
Etage: EG
WC: 1
Abstellräume: 1
Neubau
WG-geeignet
Personenaufzug
Badewanne
Fußbodenheizung
Fahrradraum
Abstellraum
Wasch-/Trockenraum
Fernwärme
schlüsselfertig mit Keller
Tiefgarage
Flachdach
Fertigparkett

Ähnliche Objekte

vergleichen
6uA6YPaWpuzd5vmn2h760c

Klein, fein & besonders

€ 125.000
2
Schlafzimmer
1
Badezimmer
52 m2
Größe
März 30, 2026
vergleichen
51K6kVeavtxw4X2w1Dk8z0

Traumhafte 2-Zimmer-Wohnung am Anemonensee i...

€ 199.000
2
Schlafzimmer
1
Badezimmer
76 m2
Größe
März 30, 2026
vergleichen
6WCKMufN8UzKfnqmzFToYu

Ruhelage im Zentrum mit Loggia!

€ 220.000
3
Schlafzimmer
1
Badezimmer
79 m2
Größe
März 21, 2026

Vergleichen