Objektbeschreibung
Kapitalanlage mit Perspektive – 28 hochwertige Anlegerwohnungen in Top-Lage zwischen Linz, Wels & Steyr
Jetzt noch exklusive Anlegerangebote für 5 Wohnungen verfügbar!
Für kurze Zeit bieten wir bei ausgewählten Einheiten attraktive Sonderkonditionen – ideal für Kapitalanleger, die gezielt in nachhaltige Immobilienwerte investieren möchten. Mit _Nobile Greenville_ entsteht ein modernes Wohnprojekt
Mehr lesen
Dokumente
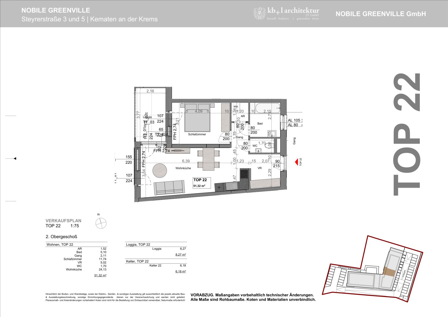
Objekt ID: 1348861
Preis: € 219.000
Nutzfläche: 51 m2
Gesamtfläche: 60 m2
Ziimmer insgesamt: 2
Schlafzimmer: 2
Badezimmer: 0
Miete/m2 €: 3675.11
Nutzungsart: Anlage
Provisionspflichtig: ja
Provision: 3% des Kaufpreises zzgl. 20% USt.
HWB: 30,20 kWh/(m²*a)
HWB Klasse: B
FGEE: 0.66
E-Ausweis Gültig Bis:: 21.03.2026
Energieausweis Art: Bedarf
Balkon/Terrassen - Fläche: 8
Etage: 2. Etage
barrierefrei
Neubau
WG-geeignet
Personenaufzug
Badewanne
Kabel/Sat-TV
Fahrradraum
Abstellraum
rollstuhlgerecht
Freiplatz
Massiv
Massivbauweise
Estrich
Wasch-/Trockenraum
Fernwärme
Gartennutzung
schlüsselfertig mit Keller
seniorengerecht
Räume veränderbar
Flachdach
Neubaustandard
Niedrigenergiehaus
Kabelkanäle
Sporteinrichtungen
Ähnliche Objekte
++ Barrierefrei ++ 4 Zimmer, TOP Grundriss m...
€ 249.000
4
Schlafzimmer
1
Badezimmer
96 m2
Größe
Dezember 24, 2025






