Objektbeschreibung
DACHGESCHOSSFLÄCHE IN BESTLAGE MIT STELLPLATZ – IDEAL FÜR BÜRO ODER PRAXIS
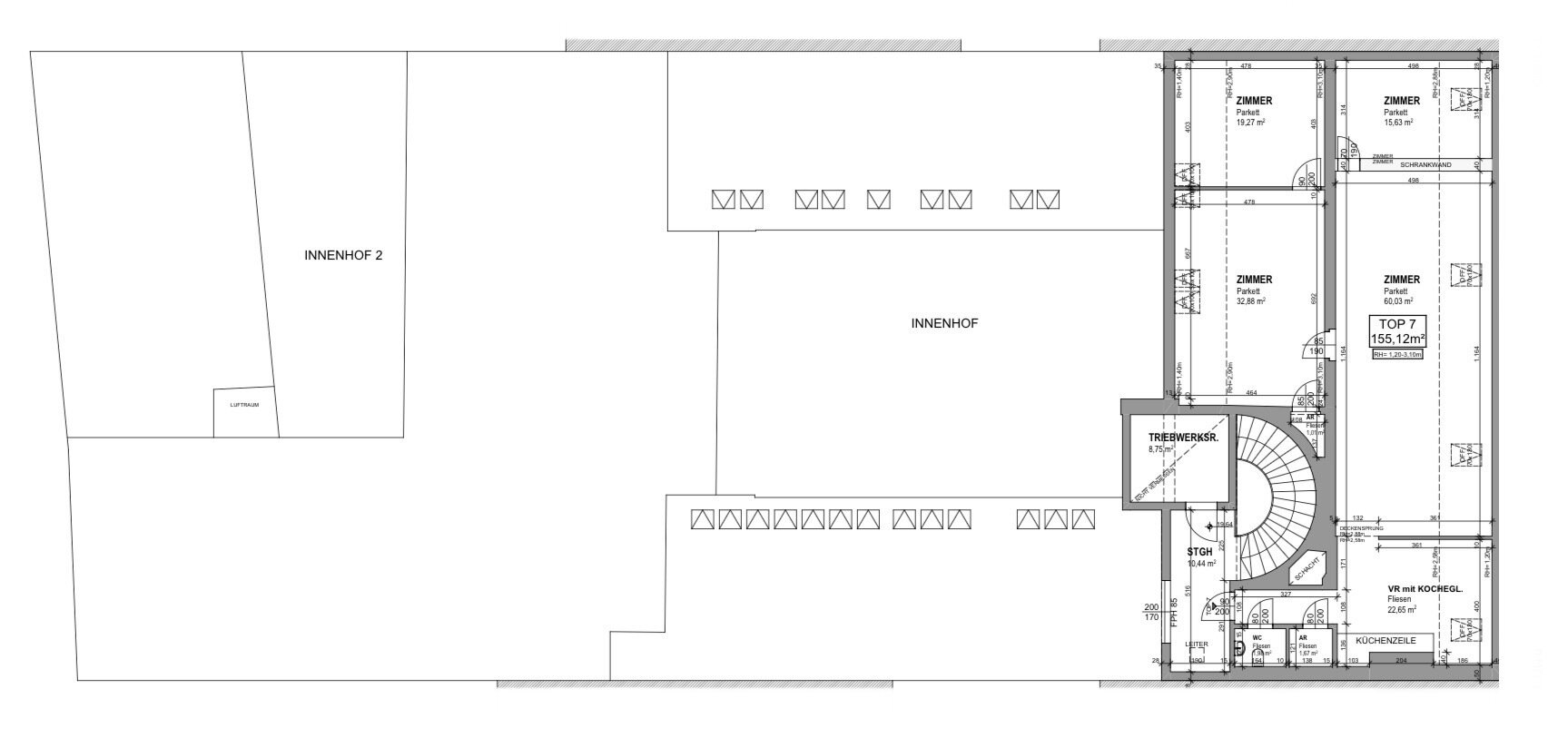
In einer der begehrtesten Wohn- und Geschäftsgegenden des 4. Bezirks Wiens bietet sich Ihnen hier die seltene Gelegenheit zur Anmietung einer kompakten, lichtdurchfluteten Dachgeschossfläche mit vielfältigen Nutzungsmöglichkeiten. Die Immobilie befindet sich im obersten Geschoss eines gepflegten Neubaus und eignet sich
Mehr lesen
Objekt ID: 1381259
Nutzfläche: 0 m2
Gesamtfläche: 0 m2
Ziimmer insgesamt: 4
Schlafzimmer: 4
Badezimmer: 0
Miete (netto) €: 2326.8
USt €: 527.41
Nutzungsart: Gewerbe
Provisionspflichtig: ja
Provision: 3 Bruttomonatsmieten zzgl. 20% USt.
Etage: 1. DG
WC: 1
Abstellräume: 1
Neubau
Personenaufzug
Etagenheizung
Laminat
Fernwärme






