Erweiterte Suche
Suchagent aktivieren
Exklusive Anzeigen

Fužine – Grundstück mit Projekt- und Baugenehmigung

€ 58.000,00

,

zu Favoriten hinzufügen
teilen
Suchergebnisse

Objektbeschreibung

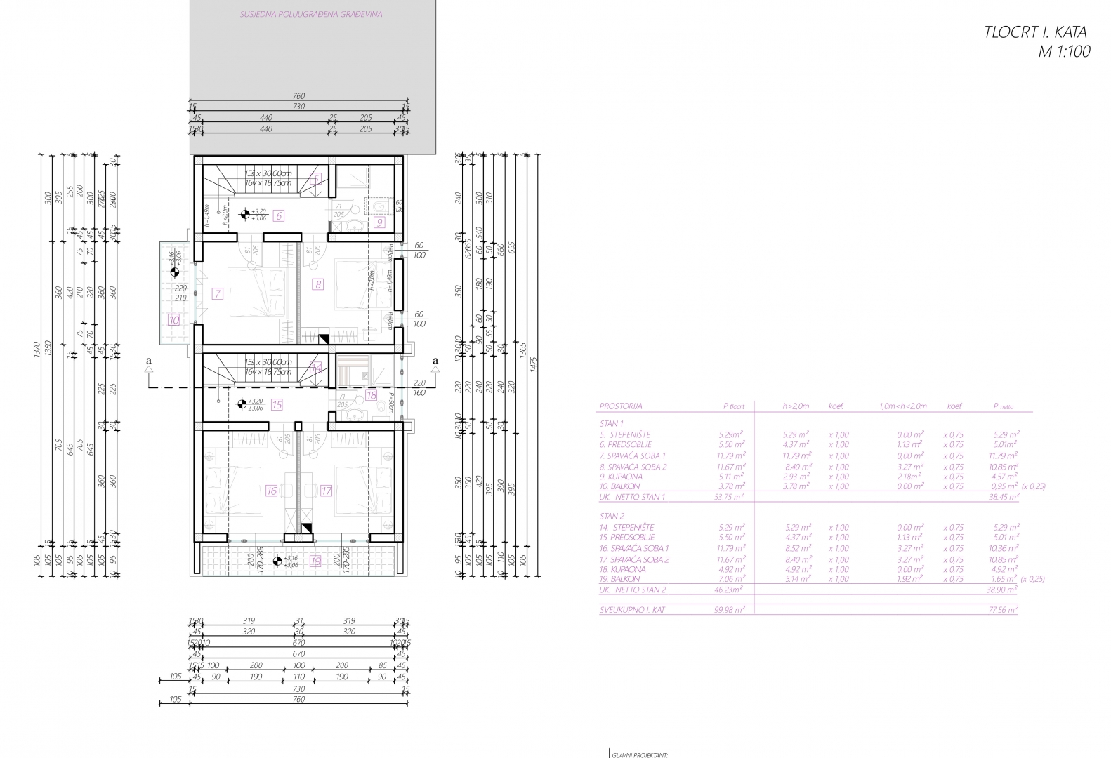
Verkauf von Bauland in der wunderschönen Umgebung von Fužine Entdecken Sie dieses außergewöhnliche Baugrundstück von 303 m², bereit zum Bau in idyllischer Lage in der malerischen Umgebung von Fužine. Das Grundstück ist flach und hat eine regelmäßige Form. Eine gültige Baugenehmigung für den Bau von zwei zweistöckigen Wohnungen ist ein
Mehr lesen

Ort:
Bezirk:
PLZ: 51322
Land: Croatia
Objekt ID: 1484047
Preis: € 58.000
Nutzfläche: 0 m2
Gesamtfläche: 0 m2
Ziimmer insgesamt: 0
Schlafzimmer: 0
Badezimmer: 0
Nutzungsart: Anlage
Provisionspflichtig: ja


Igor Popović

Kontaktaufnahme









    • Preisinformation
      Objektpreis58.000,00 €

    Vergleichen