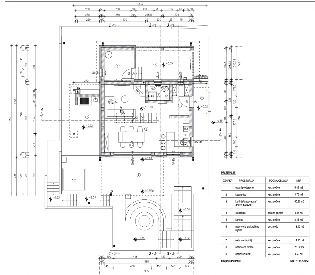
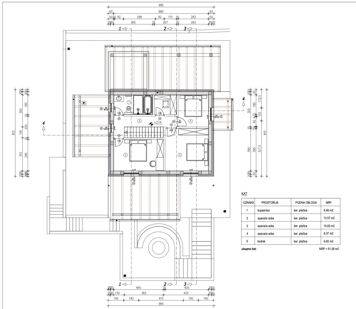
Objektbeschreibung
Baugrundstück zum Verkauf mit Projekt und gültiger Baugenehmigung in Fužine. Es liegt in der Nähe aller notwendigen Infrastrukturen, fünf Minuten zu Fuß vom Zentrum von Fužine und dem See entfernt. Ich habe die gesamten Nebenkosten für den Bau des Hauses und den Anschluss an die Maschine bezahlt. Abwasser, Wasser und
Mehr lesen
Objekt ID: 1484406
Preis: € 130.000
Nutzfläche: 0 m2
Gesamtfläche: 0 m2
Ziimmer insgesamt: 0
Schlafzimmer: 0
Badezimmer: 0
Nutzungsart: Anlage
Provisionspflichtig: ja











