Objektbeschreibung
In der Stadt Retz im Weinviertel (80 km nördlich von Wien gelegen) gelangt an sofort diese tolle Fläche zur Vermietung.
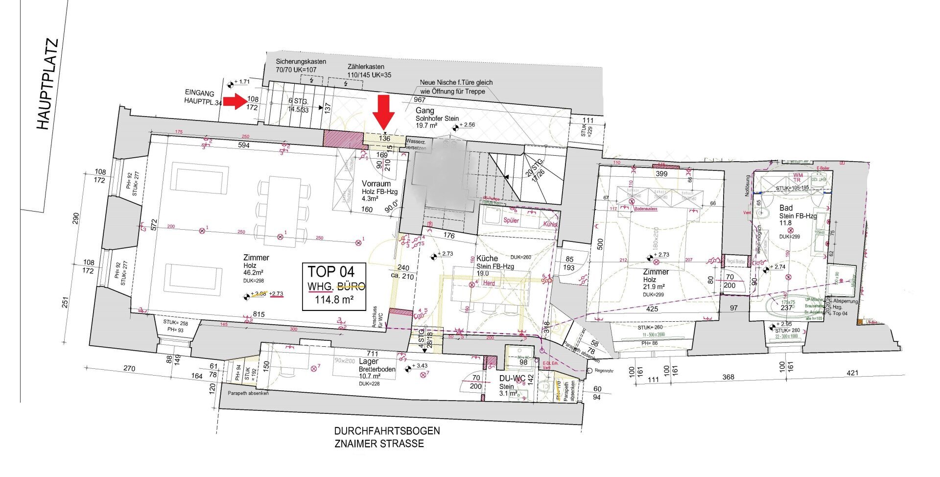
Das Büro wurde soeben generalsaniert und hochwertig ausgestattet und befindet sich im Hochparterre (ohne Lift !) in einem im 16. Jahrhundert erbauten Palazzo und überzeugt durch seine sensationelle Lage direkt am
Mehr lesen
Objekt ID: 1725113
Nutzfläche: 0 m2
Gesamtfläche: 115 m2
Ziimmer insgesamt: 2
Schlafzimmer: 2
Badezimmer: 2
Miete/m2 €: 8.62
Miete (netto) €: 990
USt €: 234.96
Nutzungsart: Gewerbe
Provisionspflichtig: ja
Kaution: 4.660,00 €
HWB: 169,90 kWh/(m²*a)
E-Ausweis Gültig Bis:: 15.07.2034
Energieausweis Art: Bedarf
Beziehbar: Sofort
Etage: Hochparterre
WC: 2
Einbauküche
Gäste-WC
Altbau
Gas
Parkett
Bad mit Fenster
Zentralheizung
Ähnliche Objekte
Generalsaniertes Objekt – Arbeiten im ...
2
Schlafzimmer
2
Badezimmer
justimmoexternal
September 13, 2025






























