Objektbeschreibung
In der Stadt Retz im Weinviertel (80 km nördlich von Wien gelegen) gelangt ab sofort diese tolle Wohnung zur Vermietung.
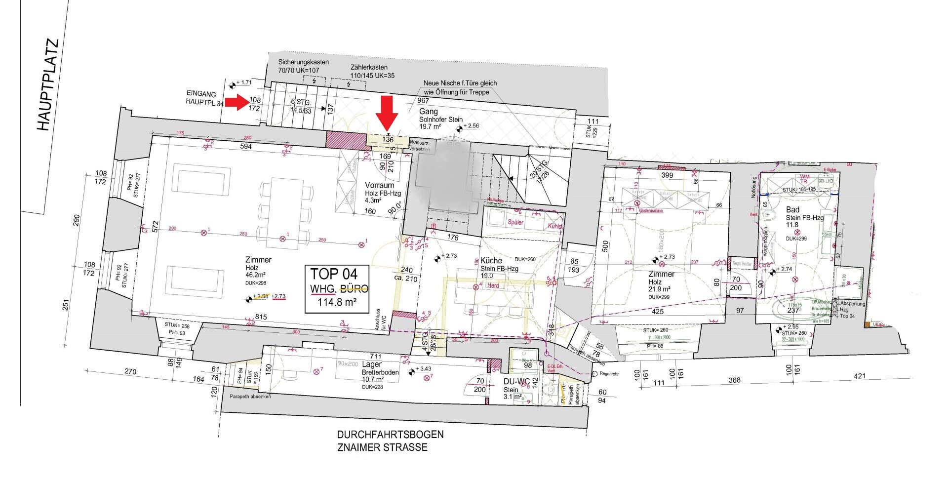
Die Wohnung wurde soeben generalsaniert und hochwertig ausgestattet und befindet sich im Hochparterre in einem im 16. Jahrhundert erbauten Palazzo und überzeugt durch seine sensationelle Lage direkt am Hauptplatz.
Mehr lesen
Objekt ID: 2160073
Preis: € 1.292.29
Nutzfläche: 115 m2
Gesamtfläche: 0 m2
Ziimmer insgesamt: 2
Schlafzimmer: 2
Badezimmer: 2
Miete/m2 €: 8.62
Miete (netto) €: 990
USt €: 117.48
Gesamtbelastung €: 1292.29
Nutzungsart: Wohnen
Provisionspflichtig: nein
Kaution: 4.300,00 €
HWB: 169,90 kWh/(m²*a)
E-Ausweis Gültig Bis:: 15.07.2034
Energieausweis Art: Bedarf
Beziehbar: Sofort
Etage: Hochparterre
WC: 2
Abstellräume: 1
Einbauküche
Gäste-WC
Altbau
Gas
Parkett
Bad mit Fenster
Zentralheizung
Abstellraum



