Erweiterte Suche
Suchagent aktivieren
Exklusive Anzeigen

Geschäftsraum Virje, 19.800m2

€ 700.000,00

,

20 Zimmer
zu Favoriten hinzufügen
teilen
Suchergebnisse

Objektbeschreibung

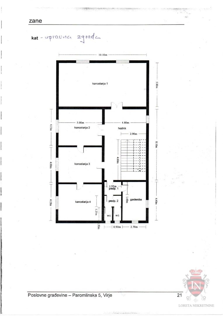
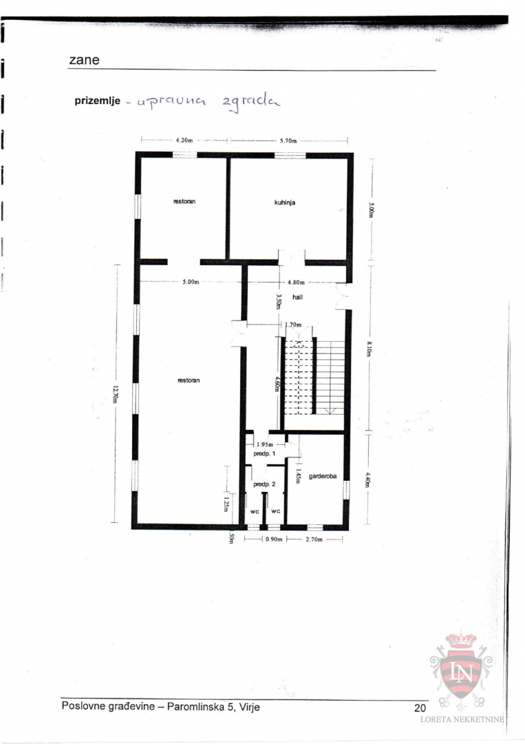
Eine Geschäfts- und Produktionshalle in Kroatien, Gespanschaft Koprivnica-Križevci, Gemeinde Virje, ist verkauft. Die Halle wurde auf einem 19.800 m2 eingezäunten Grundstück errichtet, auf dem sich 4.800 m2 Geschäfts- und Produktionshalle mit Nebenräumen und 500 m2 Verwaltungsgebäude mit Büro- und Sanitäranlagen befinden.
 
 
 
Zufahrt, Parkplatz
Mehr lesen

Ort:
Bezirk:
PLZ: 48326
Land: Croatia
Objekt ID: 1776479
Preis: € 700.000
Nutzfläche: 0 m2
Gesamtfläche: 0 m2
Ziimmer insgesamt: 20
Schlafzimmer: 20
Badezimmer: 1
Nutzungsart: Gewerbe
Provisionspflichtig: ja


Ivan Bošković

Kontaktaufnahme









    • Preisinformation
      Objektpreis700.000,00 €

    Vergleichen