Erweiterte Suche
Andere Eigenschaften
Suchagent aktivieren
Exklusive Anzeigen

Stilvoll wohnen. Nachhaltig leben. Ideal gelegen.

€ 310.000,00

,

72.93 Zimmer
zu Favoriten hinzufügen
teilen
Suchergebnisse

Objektbeschreibung

28 exklusive & hochwertige Eigentumswohnungen z_wischen Linz, Wels & Steyr _

Mit Nobile Greenville entsteht ein modernes Wohnprojekt mit insgesamt 28 stilvollen Eigentumswohnungen, die Design, Wohnkomfort und Umweltbewusstsein perfekt vereinen. In bester Lage zwischen Wels, Linz und Steyr im Herzen von Kematen an der Krems, mit optimaler Anbindung an den oberösterreichischen
Mehr lesen

Dokumente
Bezirk:
Bundesland:
PLZ: 4531
Land: Österreich
Objekt ID: 2057682
Preis: € 310.000
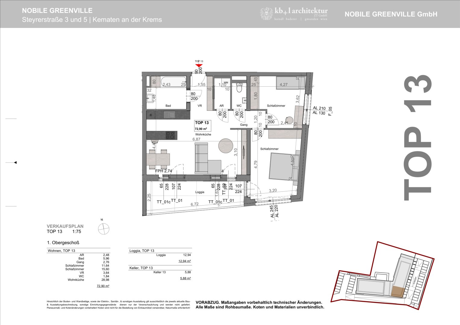
Nutzfläche: 73 m2
Gesamtfläche: 86 m2
Ziimmer insgesamt: 3
Schlafzimmer: 3
Badezimmer: 0
Miete/m2 €: 3611.37
Nutzungsart: Anlage
Provisionspflichtig: ja
Provision: 3% des Kaufpreises zzgl. 20% USt.
HWB: 30,20 kWh/(m²*a)
HWB Klasse: B
FGEE: 0.66
E-Ausweis Gültig Bis:: 21.03.2026
Energieausweis Art: Bedarf
Balkon/Terrassen - Fläche: 12
Etage: 1. Etage
barrierefrei
Neubau
Personenaufzug
Fußbodenheizung
Carport
Dielen
Fernwärme

Ähnliche Objekte

vergleichen
52RHwZ3LOyJekfGO8RZ2al

++ Barrierefrei ++ 4 Zimmer, TOP Grundriss m...

€ 249.000
4
Schlafzimmer
1
Badezimmer
96 m2
Größe
Dezember 24, 2025
vergleichen
75WPEodysWkLGs4LBOX83y

Ihr neues Zuhause, direkt beim Golfclub &...

€ 299.000
3
Schlafzimmer
71 m2
Größe
November 5, 2025
vergleichen
7vgBfBpVnLUd6WQa3VdSCh

Nobile Greenville – Stilvoll wohnen. N...

€ 297.000
3
Schlafzimmer
70 m2
Größe
November 5, 2025

OVB Allfinanzvermittlungs GmbH
Sara Hufnagl

Kontaktaufnahme









    • Preisinformation
      Objektpreis310.000,00 €

    Vergleichen