Erweiterte Suche
Andere Eigenschaften
Suchagent aktivieren
Exklusive Anzeigen

STADTRAND – RUHELAGE: 3-Zimmer-Wohnung mit Balkon, Vöcklabruck – Poschenhof

€ 1.070,00

,

77.43 Zimmer
zu Favoriten hinzufügen
teilen
Suchergebnisse

Objektbeschreibung

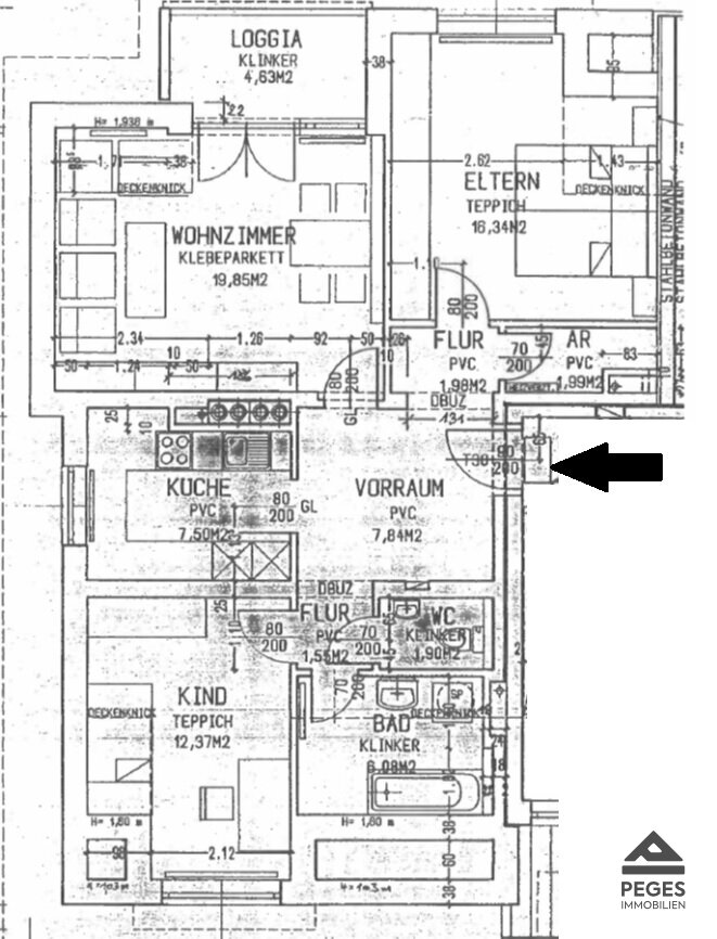
Im Auftrag des Eigentümers vermieten wir eine ruhig gelegene, gut aufgeteilte eine 3-Zimmer-Wohnung mit Balkon/ Loggia sowie einem PKW-Freistellplatz und Carport am Stadtrand von Vöcklabruck – Poschenhof.

Die Wohnung mit einer Wohnfläche von ca. 77,40 m² zuzüglich Balkon mit ca. 4,63 m² liegt im 3. Stock und somit obersten Stockwerk
Mehr lesen

Bezirk:
Bundesland:
PLZ: 4840
Land: Österreich
Objekt ID: 2067157
Preis: € 1.070
Nutzfläche: 77 m2
Gesamtfläche: 0 m2
Ziimmer insgesamt: 3
Schlafzimmer: 3
Badezimmer: 1
Miete (netto) €: 894.29
Betriebskosten €: 175.71
Gesamtbelastung €: 1070
Nutzungsart: Wohnen
Provisionspflichtig: nein
Kaution: 3 Bruttomonatsmieten
HWB: 70,30 kWh/(m²*a)
HWB Klasse: C
FGEE: 2.59
E-Ausweis Gültig Bis:: 02.07.2029
Energieausweis Art: Bedarf
Anzahl Balkone: 1
Balkon/Terrassen - Fläche: 4
Beziehbar: ab Jänner 2026 möglich/ nach Vereinbarung
Etage: 3. Etage / Dachgeschoss
Abstellräume: 1
Balkon
Einbauküche
WG-geeignet
Bad mit Fenster
Kabel/Sat-TV
Kamin
Zentralheizung
Freiplatz
Massiv
Massivbauweise
Linoleum
Warmwasser-Elektroheizung

Peges Immobilien Gesellschaft m.b.H.
Michael Penninger, MSc.

Kontaktaufnahme









    • Preisinformation
      Miete netto894,29 €
      Betriebskosten175,71 €
      Gesamtbelastung1.070,00 €
      Objektpreis1.070,00 €

    Vergleichen