Objektbeschreibung
Alle verfügbaren Wohnungen finden Sie unter: www.accenta-immo.at/sen35 [https://www.accenta-immo.at/sen35]
Das Projekt Senefeldergasse 35 vereint historischen Charme mit modernem Wohnkomfort.
Das gesamte Haus wurden umfassend renoviert, um zeitgemäße Wohnstandards zu erfüllen und gleichzeitig den ursprünglichen Charakter des Gebäudes zu bewahren. Dabei lag besonderes Augenmerk auf der Erhaltung historischer Elemente, ergänzt durch moderne
Mehr lesen
Objekt ID: 2154303
Preis: € 240.000
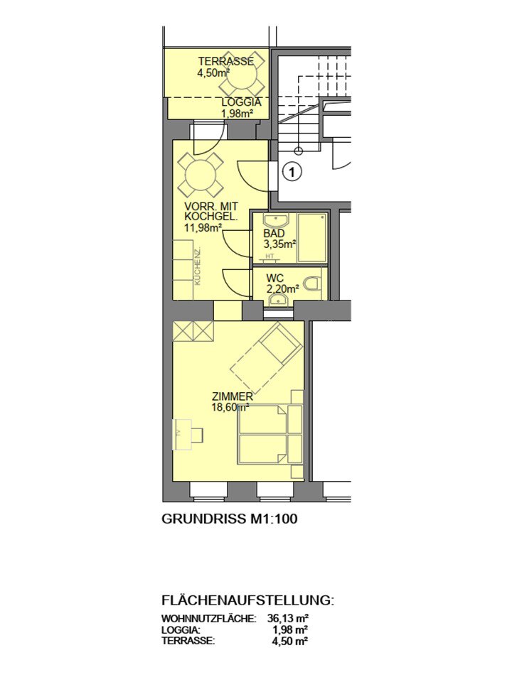
Nutzfläche: 36 m2
Gesamtfläche: 43 m2
Ziimmer insgesamt: 1
Schlafzimmer: 1
Badezimmer: 1
Nutzungsart: Anlage
Provisionspflichtig: ja
Provision: 3% des Kaufpreises zzgl. 20% USt.
HWB: 31,43 kWh/(m²*a)
HWB Klasse: B
FGEE: 0.77
E-Ausweis Gültig Bis:: 14.12.2029
Energieausweis Art: Bedarf
Balkon/Terrassen - Fläche: 6
Etage: EG
WC: 1
vollmöbliert
Einbauküche
Personenaufzug
Parkett
Dusche
Fußbodenheizung
Fernwärme










