Objektbeschreibung
Eine historische Villa | drei Einheiten | Hohe Altbau-Räume, stilvolle Stuckelemente, Fußbodenheizung, Luftwärmepumpe u. v. m.
Inmitten des exklusiven Villenviertels von Purkersdorf entsteht ein außergewöhnliches Wohnprojekt mit nur drei Einheiten – jede für sich einzigartig in Gestaltung und Nutzungsmöglichkeiten. Dieses Projekt vereint stilvollen Altbau-Charme mit modernem Wohnkomfort. Nutzen Sie Ihre Chance
Mehr lesen
Objekt ID: 2311218
Preis: € 999.000
Nutzfläche: 216 m2
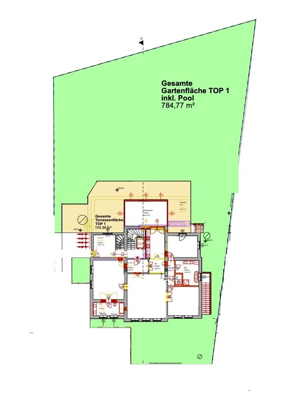
Gesamtfläche: 321 m2
Ziimmer insgesamt: 4
Schlafzimmer: 4
Badezimmer: 2
Miete/m2 €: 3109.53
Nutzungsart: Wohnen
Provisionspflichtig: ja
Provision: 3% des Kaufpreises zzgl. 20% USt.
Balkon/Terrassen - Fläche: 104
WC: 2
Abstellräume: 2
Personenaufzug
Parkett
Bad mit Fenster
Fußbodenheizung
Fahrradraum
offene Küche
Abstellraum
Offene Küche
Klimaanlage
Carport
Luft-Wärmepumpe
Swimmingpool
Räume veränderbar
Wintergarten
Ähnliche Objekte
Historische Villa – Erstbezug nach Kernsanie...
€ 699.000
4
Schlafzimmer
2
Badezimmer
154 m2
Größe
März 14, 2026
Großzügige Maisonette I 6 Zimmer I Eigengart...
€ 719.000
6
Schlafzimmer
2
Badezimmer
248 m2
Größe
März 6, 2026










