Erweiterte Suche
Suchagent aktivieren
Exklusive Anzeigen

Klassische ALTBAU – Büroeinheit im Herzen der Altstadt von St. Veit a.d. Glan zu MIETEN !

,

2 Zimmer
zu Favoriten hinzufügen
teilen
Suchergebnisse

Objektbeschreibung

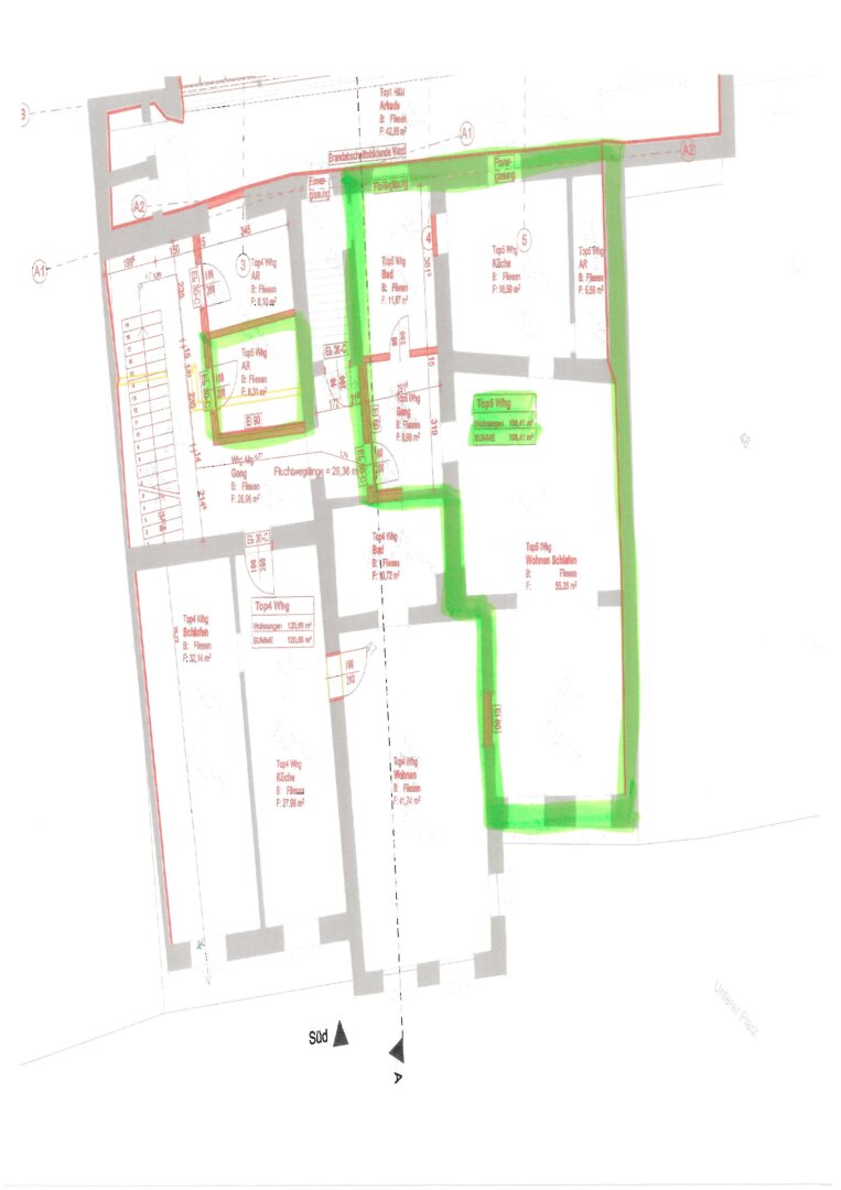
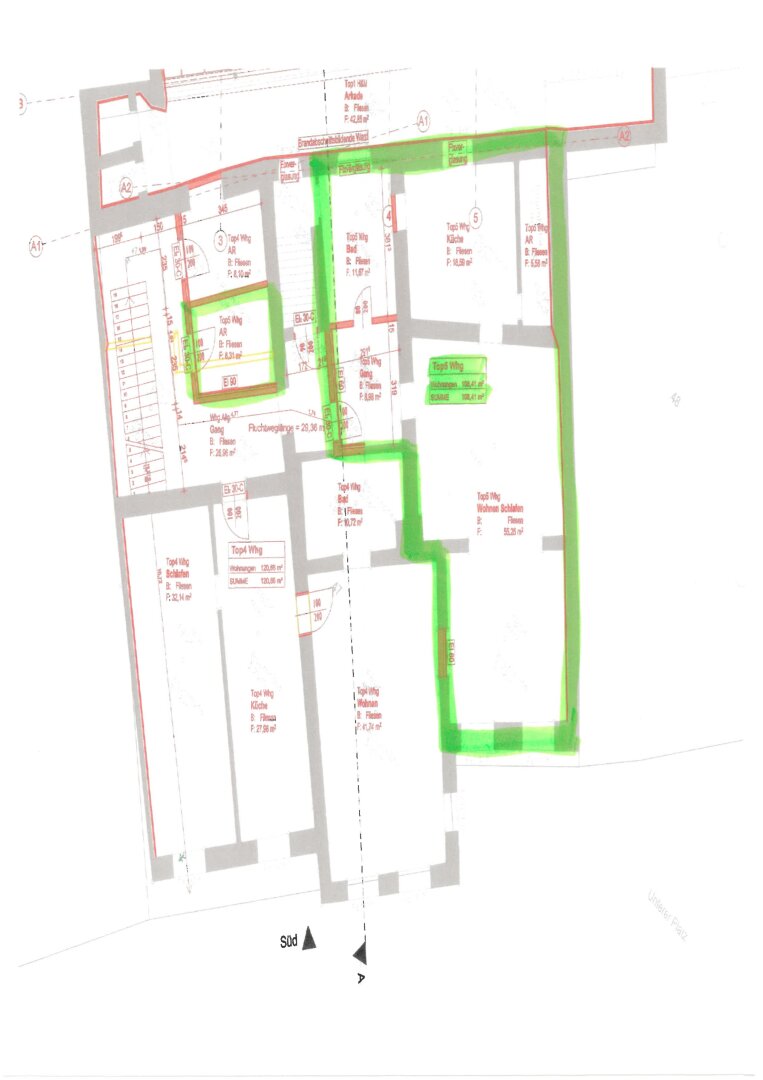
Generalsanierte klassische ALTBAU -Büroeinheit

im Herzen der Altstadt von St. Veit an der Glan

 

Bei dieser Fläche handelt es sich um eine zentral gelegene und generalsanierte Büroeinheit im Gesamtausmaß von rd. 108,41 m2 (inkl. separat zugänglichem Abstellraum/Lager), im 2. OG eines historischen Zinshauses, in bester Altstadtlage, direkt am Unteren
Mehr lesen

Bezirk:
Bundesland:
PLZ: 9300
Land: Österreich
Objekt ID: 2374347
Nutzfläche: 0 m2
Gesamtfläche: 108 m2
Ziimmer insgesamt: 2
Schlafzimmer: 2
Badezimmer: 1
Miete/m2 €: 9.13
Miete (netto) €: 990
USt €: 238
Nutzungsart: Gewerbe
Provisionspflichtig: ja
Beziehbar: sofort
Etage: 2. Etage
WC: 1
Abstellräume: 1
Altbau
Parkett
Badewanne
Massiv
Massivbauweise
Fernheizung
DV-Verkabelung

Gerhard Hudej GmbH
Ulrike Brunner

Kontaktaufnahme









    • Preisinformation
      Miete netto990,00 €
      Ust.238,00 €

    Vergleichen