Objektbeschreibung
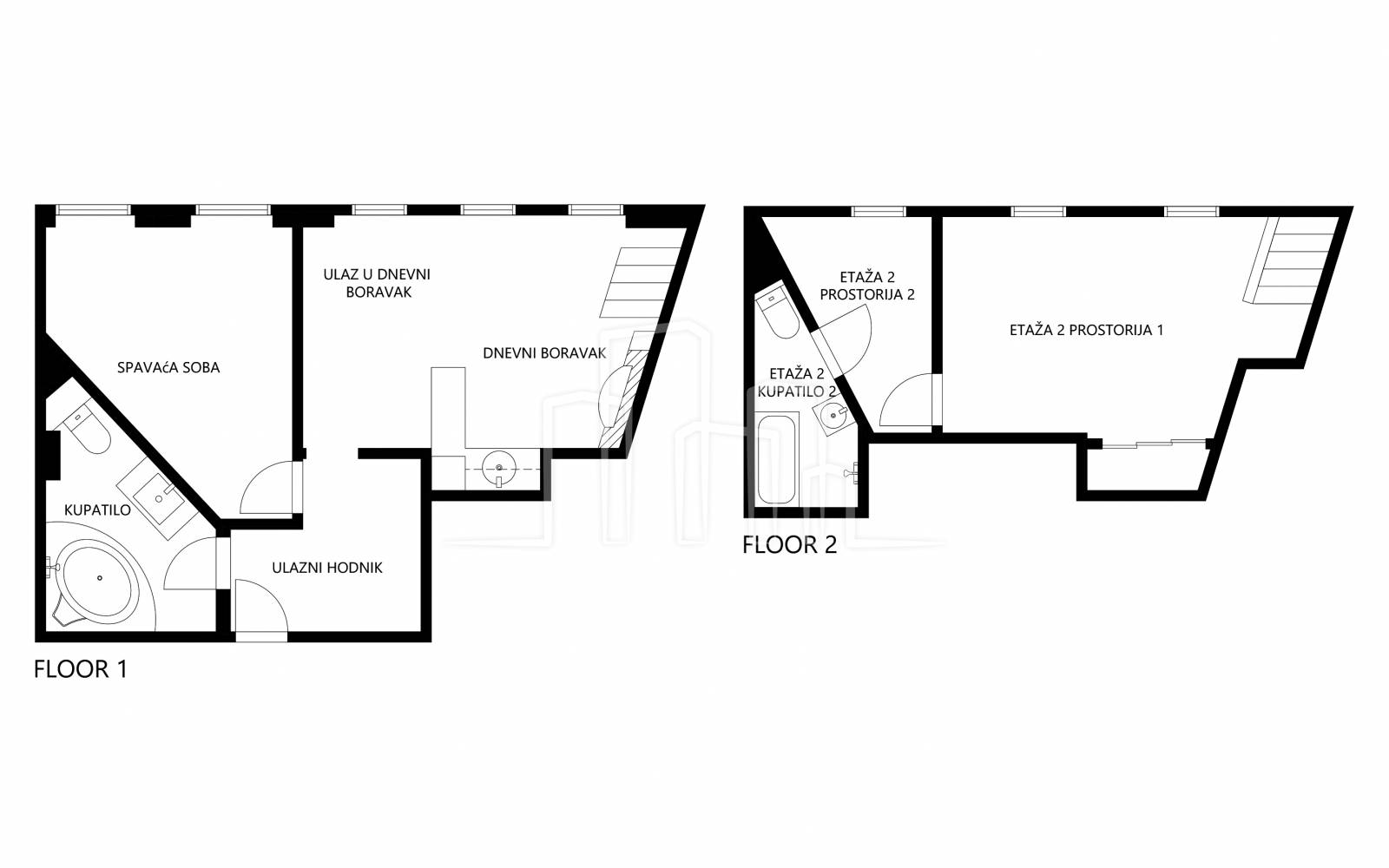
Die Immobilienagentur Stanpromet.ba in Sarajevo kündigt aus ihrem reichhaltigen Angebot an Wohnungen in Olimpija Jahorina den Verkauf einer Wohnung von 73 m2 im ApartHotel Vučko an. Wohnung von 73 m2 auf 2 Etagen, Wohnzimmer im ersten Stock mit Küche und Kamin, Flur, großes Schlafzimmer und Badezimmer, zweite Etage zwei Schlafzimmer
Mehr lesen
Objekt ID: 2428552
Preis: € 360.000
Nutzfläche: 0 m2
Gesamtfläche: 0 m2
Ziimmer insgesamt: 4
Schlafzimmer: 4
Badezimmer: 2
Nutzungsart: Wohnen
Provisionspflichtig: ja


























