Objektbeschreibung
ŠIBENIK, TRIBUNJ – Penthouse in einem luxuriösen Neubau mit Meerblick
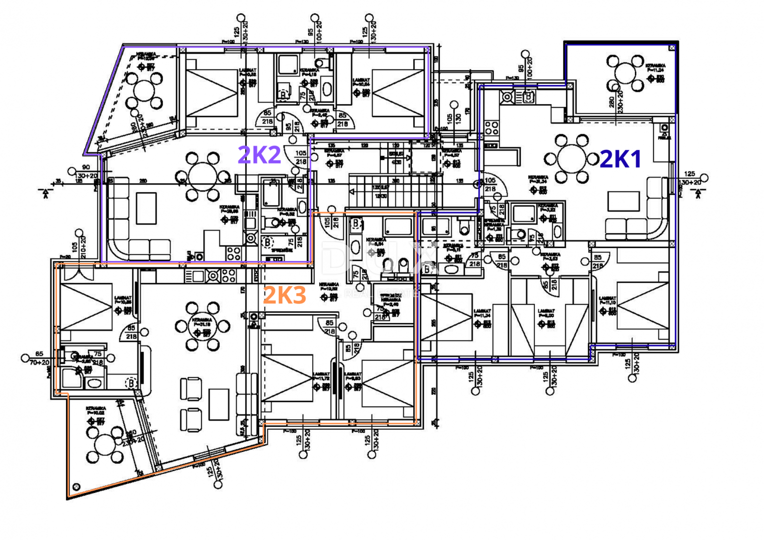
DUX vermittelt den Verkauf eines Penthouses im 2. Obergeschoss eines Neubaus in Tribunj bei Šibenik. Das Penthouse befindet sich in einem Mehrfamilienhaus mit insgesamt neun Wohneinheiten.
Das Gebäude erstreckt sich über vier Etagen: ein Untergeschoss (mit Abstellräumen für jede Wohnung),
Mehr lesen
Objekt ID: 2479179
Preis: € 432.193
Nutzfläche: 0 m2
Gesamtfläche: 0 m2
Ziimmer insgesamt: 4
Schlafzimmer: 4
Badezimmer: 2
Nutzungsart: Wohnen
Provisionspflichtig: ja








