Objektbeschreibung
AM SCHULGARTEN – WOHNUNGEN FÜR´S LEBEN
HIER GEHT ES ZU ALLEN VERFÜGBAREN TOPS IM ÜBERBLICK [http://www.ribarskireal.estate/wohnbauprojekt/13325401?from=459602&page=1]: WWW.RIBARSKIREAL.ESTATE [http://www.ribarskireal.estate/wohnbauprojekt/13325401?from=459602&page=1]
„Nicht für die Schule, sondern für das Leben lernen wir.“ – oder doch umgekehrt?
Über unser Schulsystem kann man diskutieren, über die hervorragende Lage dieses Bauprojekts nicht.
Herzlich willkommen in der Schulgartengasse!
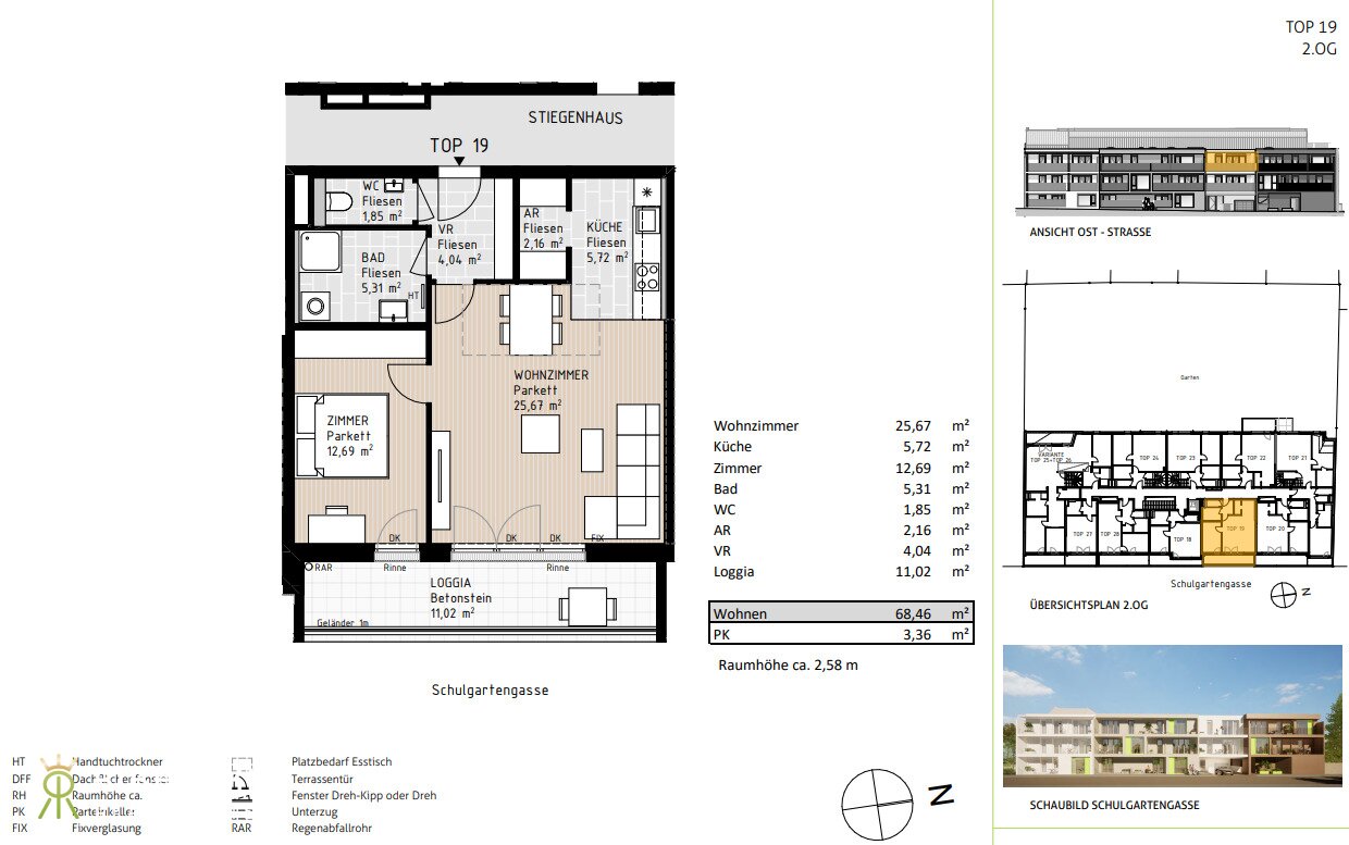
Adresse: Schulgartengasse 20
Ort: Wiener Neustadt
Bezirk: 2700
Bundesland: Niederösterreich
PLZ: 2700
Land: Österreich
Objekt ID: 2534306
Preis: € 333.000
Nutzfläche: 57 m2
Gesamtfläche: 72 m2
Ziimmer insgesamt: 2
Schlafzimmer: 2
Badezimmer: 1
Miete/m2 €: 4636.59
Nutzungsart: Wohnen
Provisionspflichtig: nein
Provision: Provision bezahlt der Abgeber.
HWB: 30,90 kWh/(m²*a)
HWB Klasse: B
FGEE: 0.73
E-Ausweis Gültig Bis:: 13.07.2033
Energieausweis Art: Bedarf
Balkon/Terrassen - Fläche: 11
Beziehbar: Ende 2025
Etage: 2. Etage
WC: 1
Abstellräume: 1
barrierefrei
Neubau
Personenaufzug
Parkett
Fußbodenheizung
Pellets
Massiv
Massivbauweise
vollerschlossen
schlüsselfertig mit Keller
Tiefgarage


















