Objektbeschreibung
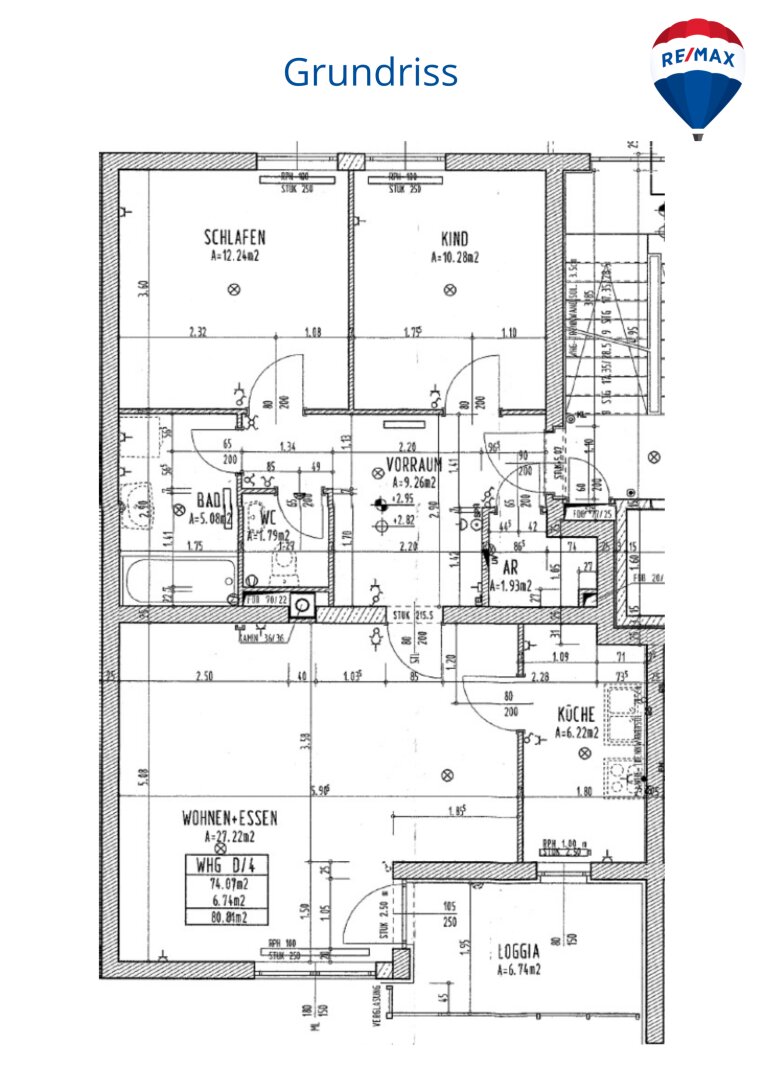
In ruhiger und dennoch sehr zentraler Lage von Vöcklabruck befindet sich diese gepflegte und gut geschnittene 3-Zimmer-Eigentumswohnung mit einer Wohnfläche von ca. 74 m². Die Wohnung liegt in einem Mehrparteienhaus in der Tegetthoffstraße und bietet nicht nur ein angenehmes Wohnklima, sondern auch eine sehr gute Infrastruktur und ausgezeichnete Anbindung an
Mehr lesen
Objekt ID: 2544630
Preis: € 255.000
Nutzfläche: 74 m2
Gesamtfläche: 0 m2
Ziimmer insgesamt: 3
Schlafzimmer: 3
Badezimmer: 1
Nutzungsart: Wohnen
Provisionspflichtig: ja
Provision: 3% des Kaufpreises zzgl. 20% USt.
HWB: 76 kWh/(m²*a)
HWB Klasse: C
FGEE: 1.44
E-Ausweis Gültig Bis:: 09.12.2032
Energieausweis Art: Bedarf
Balkon/Terrassen - Fläche: 6
Beziehbar: sofort
WC: 1
Abstellräume: 1
Personenaufzug
Badewanne
Tiefgarage
Ähnliche Objekte
Moderne 4-Zimmer-Wohnung mit Eigengarten in ...
€ 319.000
4
Schlafzimmer
1
Badezimmer
90 m2
Größe
April 21, 2026
3-Zimmer-Wohnung mit XL-Terrasse (28 m²) | z...
€ 189.000
3
Schlafzimmer
1
Badezimmer
64 m2
Größe
April 19, 2026















