Erweiterte Suche
Suchagent aktivieren
Exklusive Anzeigen

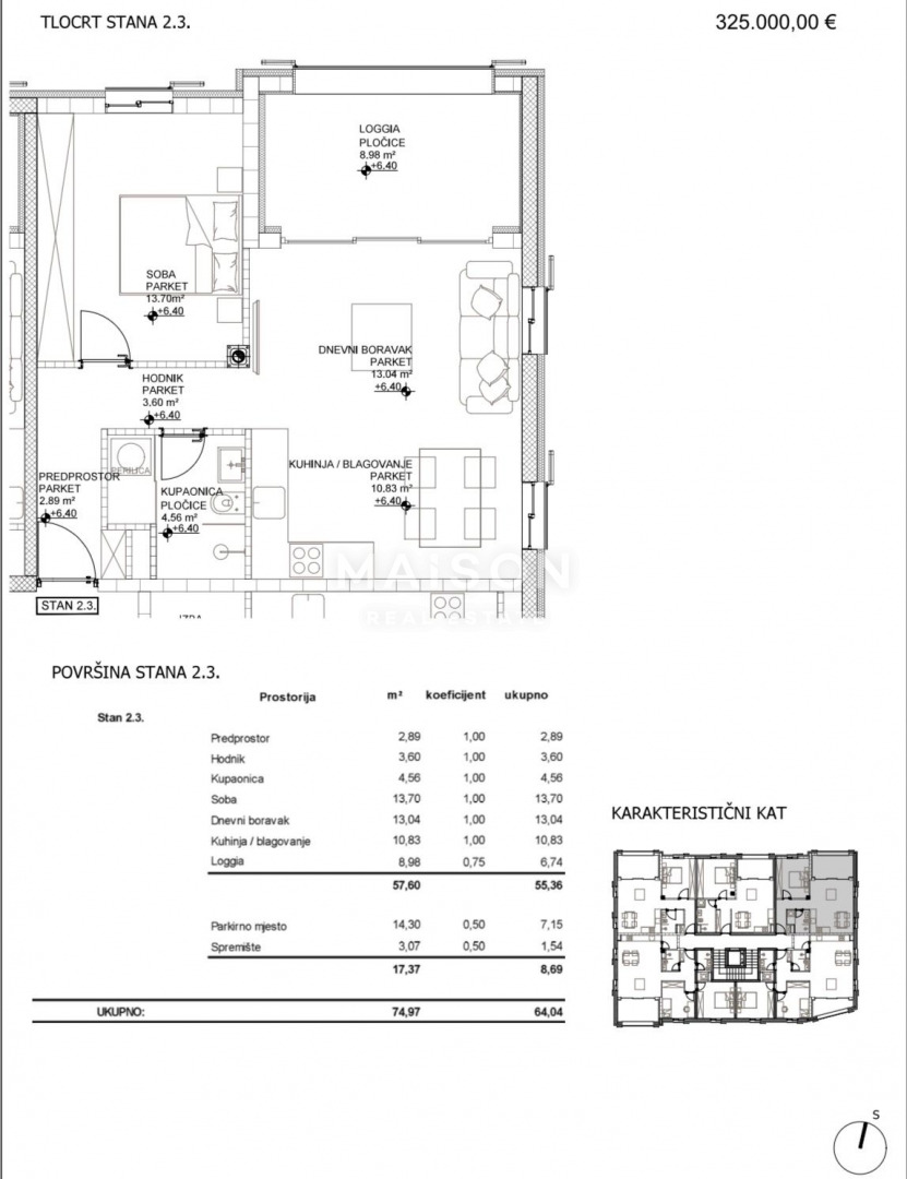
Wohnung Cres, 74,97m2

€ 325.000,00

,

2 Zimmer
zu Favoriten hinzufügen
teilen
Suchergebnisse

Objektbeschreibung

ID CODE: 1336

Ort:
Bezirk:
PLZ: 51557
Land: Croatia
Objekt ID: 2551871
Preis: € 325.000
Nutzfläche: 0 m2
Gesamtfläche: 0 m2
Ziimmer insgesamt: 2
Schlafzimmer: 2
Badezimmer: 1
Nutzungsart: Wohnen
Provisionspflichtig: ja

Ähnliche Objekte

vergleichen
1749887173 cres vizual 3

Wohnung Cres, 72,61m2

€ 302.000
3
Schlafzimmer
1
Badezimmer
April 22, 2026
vergleichen
1749891261 1749735523377

Wohnung Cres, 92,91m2

€ 385.000
3
Schlafzimmer
1
Badezimmer
April 22, 2026
vergleichen
1750021051 1749736484068

Wohnung Cres, 75,04m2

€ 312.000
2
Schlafzimmer
1
Badezimmer
April 22, 2026

Vergleichen