Objektbeschreibung
RAUMWUNDER IM WALDVIERTEL: WOHNEN, ARBEITEN & VISIONEN VERWIRKLICHEN!
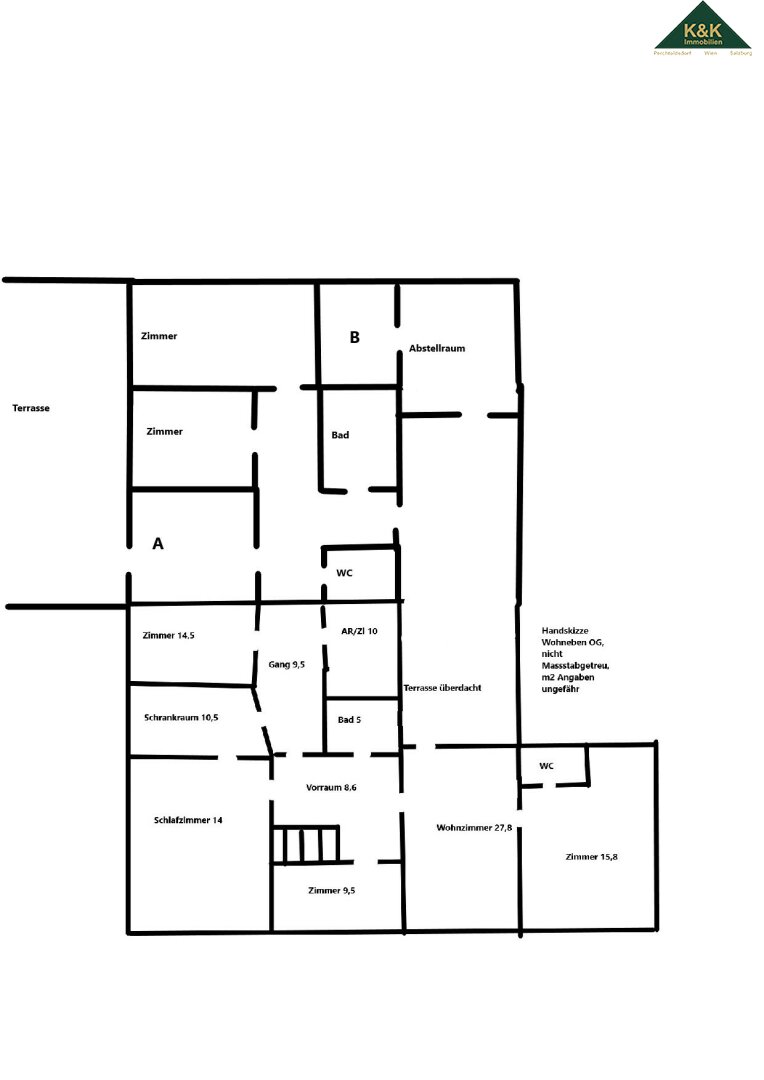
Ihr neues Projekt mit unendlichen Möglichkeiten – Café, Kaufhaus, Produktion und großzügiges Wohnen auf 1.702 m² Grund.
Suchen Sie den idealen Standort für Ihr Business kombiniert mit privatem Wohnglück? Oder ein Investment mit enormem Entwicklungspotenzial? Diese außergewöhnliche Liegenschaft im idyllischen Waldviertel bietet
Mehr lesen
Dokumente
Objekt ID: 2552082
Preis: € 550.000
Nutzfläche: 0 m2
Gesamtfläche: 1.020 m2
Ziimmer insgesamt: 11
Schlafzimmer: 11
Badezimmer: 1
Nutzungsart: Gewerbe
Provisionspflichtig: ja
Provision: 3% des Kaufpreises zzgl. 20% USt.
Beziehbar: nach Vereinbarung
WC: 3
Abstellräume: 2
Einbauküche
WG-geeignet
Gäste-WC
Bad mit Fenster
Zentralheizung
Abstellraum
Massiv
Massivbauweise
Linoleum
Bar
Alarmanlage
Solar
Kantine / Cafeteria
Ähnliche Objekte
Über 1000 m² Nutzfläche, WOHNHAUS, BÄCKEREI,...
€ 550.000
11
Schlafzimmer
1
Badezimmer
Februar 17, 2026








