Objektbeschreibung
RAUMWUNDER IM WALDVIERTEL: WOHNEN, ARBEITEN & VISIONEN VERWIRKLICHEN!
Ihr neues Projekt mit unendlichen Möglichkeiten – Café, Kaufhaus, Produktion und großzügiges Wohnen auf 1.702 m² Grund.
Suchen Sie den idealen Standort für Ihr Business kombiniert mit privatem Wohnglück?
Oder ein Investment mit enormem Entwicklungspotenzial?
Diese außergewöhnliche Liegenschaft im idyllischen
Mehr lesen
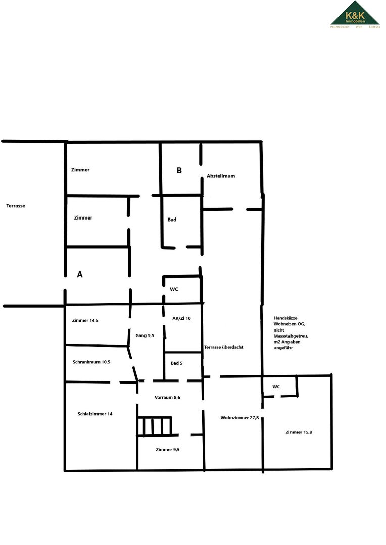
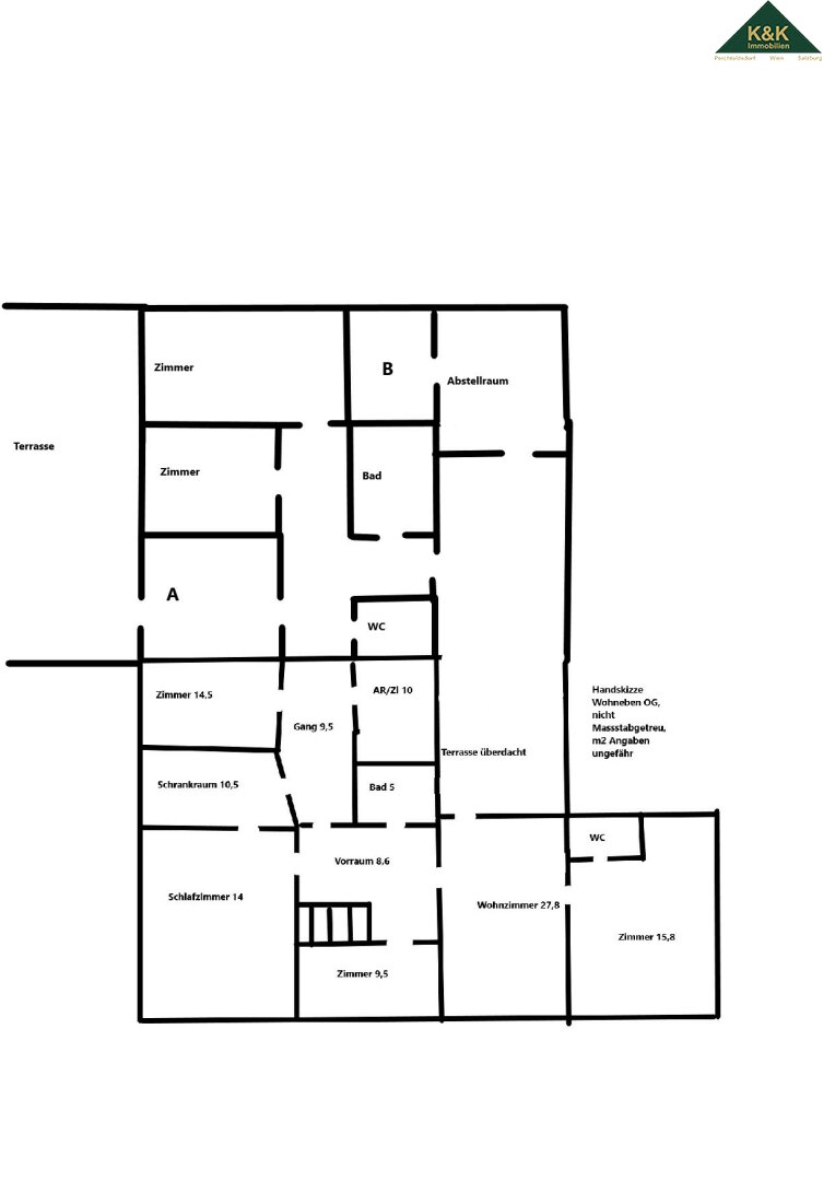
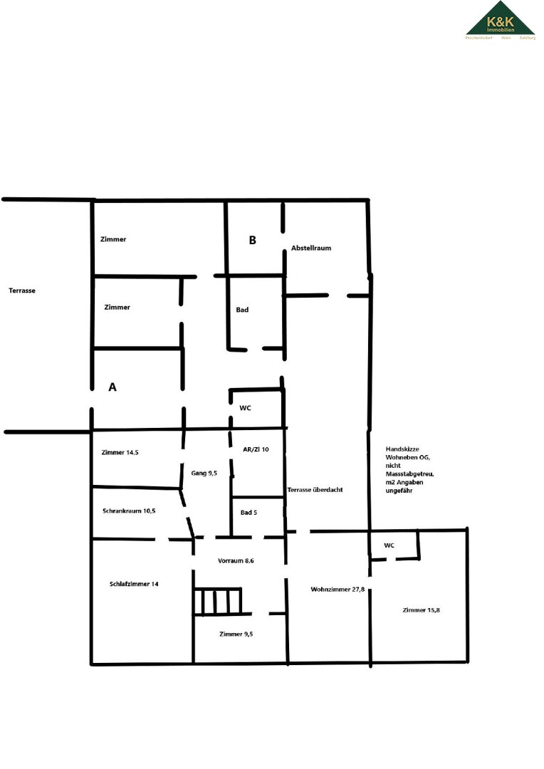
Dokumente
Objekt ID: 2552090
Preis: € 550.000
Nutzfläche: 0 m2
Gesamtfläche: 1.020 m2
Ziimmer insgesamt: 11
Schlafzimmer: 11
Badezimmer: 1
Nutzungsart: Wohnen
Provisionspflichtig: ja
Provision: 3% des Kaufpreises zzgl. 20% USt.
Beziehbar: nach Vereinbarung
WC: 3
Abstellräume: 2
Einbauküche
WG-geeignet
Gäste-WC
Bad mit Fenster
Zentralheizung
Abstellraum
Massiv
Massivbauweise
Linoleum
Bar
Alarmanlage
Solar
Kantine / Cafeteria








