Erweiterte Suche
Andere Eigenschaften
Suchagent aktivieren
Exklusive Anzeigen

*68m² freundliche 3-Zimmerwohnung Graz Nähe Augarten mit Innenhofbalkon – Zweiglgasse – unmöbliert*

€ 918,00

Zweiglgasse 14, ,

683 Zimmer
zu Favoriten hinzufügen
teilen
Suchergebnisse

Objektbeschreibung

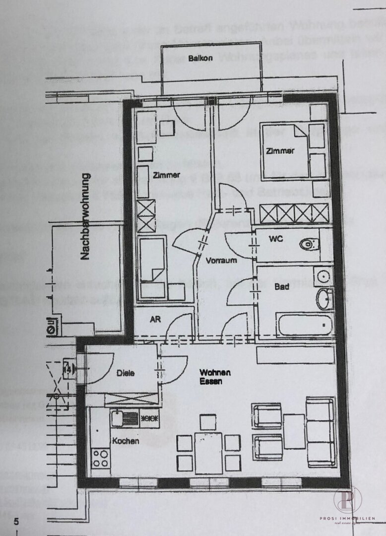
Ab sofort steht eine helle 3-Zimmer-Mietwohnung in Graz in der Zweiglgasse 14 im 4. OG zur Verfügung.

Die Wohnung (unmöbliert) überzeugt durch ihre praktische Raumaufteilung, Balkon, Kellerabteil und Tiefgaragenplatz 

*
1 Wohn-Ess-Küchenbereich (kann möbliert werden)

*
2 Schlafzimmer

*
Badezimmer

*
Separates WC


Mehr lesen

Adresse: Zweiglgasse 14
Ort:
Bezirk:
Bundesland:
PLZ: 8020
Land: Österreich
Objekt ID: 2614405
Preis: € 918
Nutzfläche: 68 m2
Gesamtfläche: 0 m2
Ziimmer insgesamt: 3
Schlafzimmer: 3
Badezimmer: 1
Miete (netto) €: 918
Gesamtbelastung €: 918
Nutzungsart: Wohnen
Provisionspflichtig: nein
Kaution: 3 Bruttomonatsmieten
HWB: 45,09 kWh/(m²*a)
Energieausweis Art: Bedarf
Anzahl Balkone: 1
Beziehbar: ab sofort
Max. Mietdauer: unbefristet
WC: 1
Balkon
Personenaufzug
Badewanne
Fernheizung
Tiefgarage

Ähnliche Objekte

vergleichen
2DuN26TimDj6BBHUJgS3ev
PROVISIONSFREI

Großzügige 3-Zimmer Wohnung mit Balkon in St...

€ 1.150
3
Schlafzimmer
1
Badezimmer
93 m2
Größe
Januar 31, 2026
vergleichen
q6DVknpPL6kD05bKASKAc
PROVISIONSFREI

Graz – St. Leonhard – Univiertel...

€ 899.90
4
Schlafzimmer
1
Badezimmer
75 m2
Größe
Januar 31, 2026
vergleichen
14OKVxZZQ4EelgfyRWqjB
PROVISIONSFREI

*50m² helle Wohnung mit Balkon und Tiefgarag...

€ 686
2
Schlafzimmer
1
Badezimmer
50 m2
Größe
Januar 30, 2026

Prosi Immobilien e.U.
Manuela Wallner

Kontaktaufnahme









    • Preisinformation
      Miete netto918,00 €
      Gesamtbelastung918,00 €
      Objektpreis918,00 €

    Vergleichen