Erweiterte Suche
Suchagent aktivieren
Exklusive Anzeigen

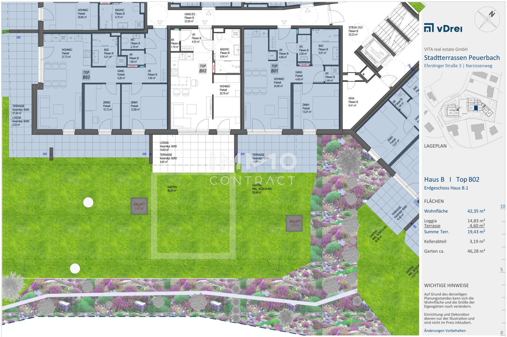
Stadtterrassen Peuerbach ** BAUBEGINN ERFOLGT! **

€ 229.592,00

,

42.351 Zimmer
zu Favoriten hinzufügen
teilen
Suchergebnisse

Objektbeschreibung

Im Zentrum von Peuerbach entstehen 32 Eigentumswohnungen mit einem Ausmaß von rund 35 m² bis etwa 117 m². Die „Stadtterrassen Peuerbach“ sind südwestlich ausgerichtet, erstrecken sich entlang des Narzissenweges und bieten einen schönen Ausblick über Peuerbach. Die zentrale Lage in Peuerbach ermöglicht Ihnen einen bequemen Zugang zu allen wichtigen Annehmlichkeiten
Mehr lesen

Bezirk:
Bundesland:
PLZ: 4722
Land: Österreich
Objekt ID: 2875537
Preis: € 229.592
Nutzfläche: 42 m2
Gesamtfläche: 0 m2
Ziimmer insgesamt: 1
Schlafzimmer: 1
Badezimmer: 0
Miete/m2 €: 3667
Nutzungsart: Wohnen
Provisionspflichtig: nein
Provision: Provision bezahlt der Abgeber.
HWB: 35,30 kWh/(m²*a)
HWB Klasse: B
FGEE: 0.56
E-Ausweis Gültig Bis:: 01.08.2034
Energieausweis Art: Bedarf
Balkon/Terrassen - Fläche: 19
Beziehbar: 30.06.2027
Etage: Erdgeschoss

Ähnliche Objekte

vergleichen
3FOl5GwHfGCccLMs5ge8eQ
PROVISIONSFREI

Stadtterrassen Peuerbach ** BAUBEGINN ERFOLG...

€ 165.452
1
Schlafzimmer
35 m2
Größe
April 17, 2026
vergleichen
49ceJO2911k6KdeA2w7MRM
PROVISIONSFREI

Stadtterrassen Peuerbach ** BAUBEGINN ERFOLG...

€ 287.637
2
Schlafzimmer
57 m2
Größe
April 17, 2026
vergleichen
6xkBGySiq0dPKCSO2v1XZ0
PROVISIONSFREI

Stadtterrassen Peuerbach ** BAUBEGINN ERFOLG...

€ 163.519
1
Schlafzimmer
34 m2
Größe
April 17, 2026

Vergleichen