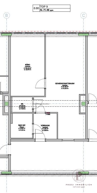
Objektbeschreibung
Die Top 9 im Obergeschoss des Ärztezentrums in Feldkirchen bei Graz bietet eine vielseitig nutzbare Praxis- oder Bürofläche mit ca. 71 m². Die zentrale Lage nahe dem Ortszentrum sorgt für eine gute Erreichbarkeit für Kunden, Patienten und Mitarbeiter. Besucherparkplätze stehen direkt beim Gebäude frei zur Verfügung.
Raumaufteilung:
*
Büro
Mehr lesen
Objekt ID: 2946894
Nutzfläche: 0 m2
Gesamtfläche: 0 m2
Ziimmer insgesamt: 2
Schlafzimmer: 2
Badezimmer: 1
Miete (netto) €: 771.98
Betriebskosten €: 349.3
Nutzungsart: Gewerbe
Kaution: 3 Bruttomonatsmieten
HWB: 72,80 kWh/(m²*a)
Energieausweis Art: Bedarf
Beziehbar: ab sofort
Etage: EG
WC: 1
Abstellräume: 1
barrierefrei
Neubau
Freiplatz





