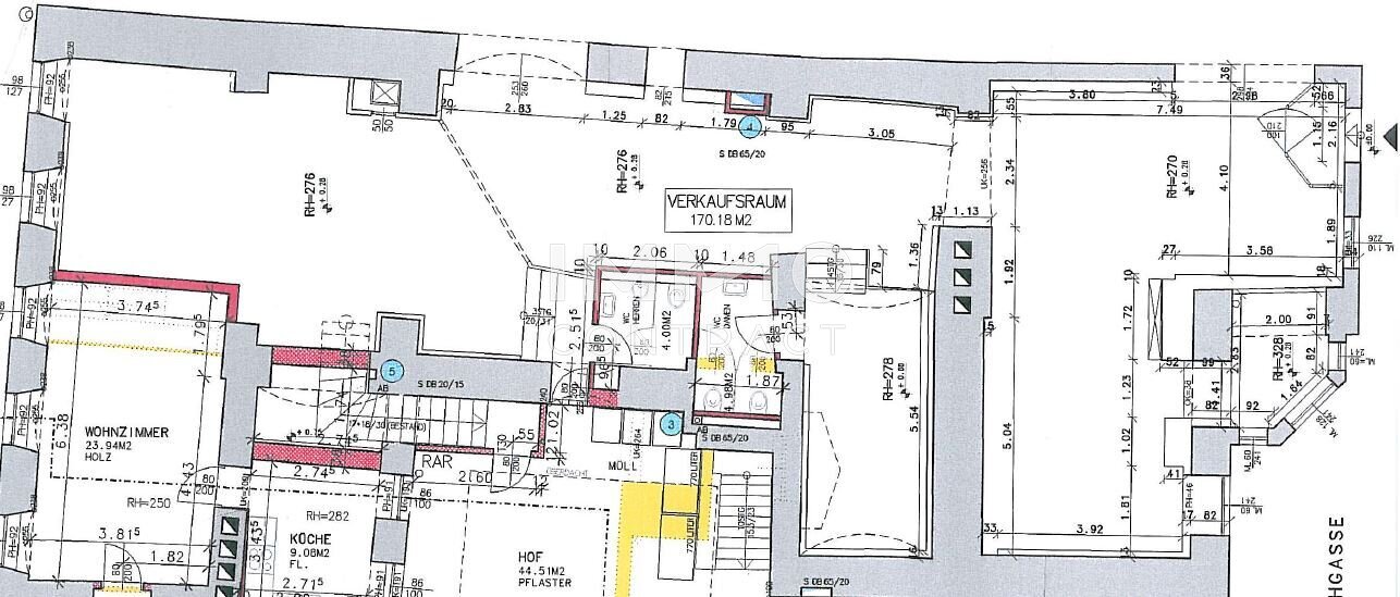
Objektbeschreibung
Geschäftslokal mit Lagerkeller in der Feuerbachgasse 6 und damit direkt beim Südtiroler Platz zu vermieten!
Die Räumlichkeiten stehen ab sofort zur Vermietung und liegen in gut frequentierter Lage inmitten der Altstadt und sind sowohl mit öffentlichen Verkehrsmitteln als auch dem Auto erreichbar. Kurzparkzone direkt vor dem Haus, Straßenhanhaltestelle ca 50m
Mehr lesen
Objekt ID: 3079273
Nutzfläche: 0 m2
Gesamtfläche: 0 m2
Ziimmer insgesamt: 0
Schlafzimmer: 0
Badezimmer: 0
Miete/m2 €: 7.64
Miete (netto) €: 1677.97
USt €: 399.9
Nutzungsart: Gewerbe
Provisionspflichtig: ja
Kaution: 3 Bruttomonatsmieten
HWB: 58,70 kWh/(m²*a)
HWB Klasse: C
FGEE: 1.24
Energieausweis Art: Bedarf
Beziehbar: sofort
Etage: EG










