Erweiterte Suche
Suchagent aktivieren
Exklusive Anzeigen

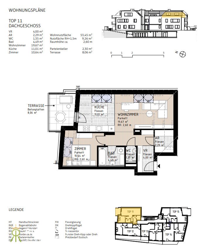
Wohnen in Verbundenheit – charmante 2 Zi im Dachgeschoss mit Klimaanlage – B Top 11 inkl. 1 TG-Platz

€ 1.134,69

Hügelgasse 21, ,

62.712 Zimmer
zu Favoriten hinzufügen
teilen
Suchergebnisse

Objektbeschreibung

Herzlich willkommen bei einem niveauvollen Projekt im Herzen von Bad Vöslau, welches zwischen Hochstraße und Hügelgasse errichtet wurde.

Die angebotene Wohnung B Top 11 verfügt über ein Schlafzimmer und ein großes Wohn- Esszimmer mit Küche. Die gut geschnittene Terrasse ist gegen Norden ausgerichtet und wird damit auch im Hochsommer zum
Mehr lesen

Adresse: Hügelgasse 21
Bezirk:
Bundesland:
PLZ: 2540
Land: Österreich
Objekt ID: 3150039
Preis: € 1.134.69
Nutzfläche: 63 m2
Gesamtfläche: 71 m2
Ziimmer insgesamt: 2
Schlafzimmer: 2
Badezimmer: 1
Miete/m2 €: 12.45
Miete (netto) €: 881
USt €: 111.99
Gesamtbelastung €: 1134.69
Nutzungsart: Wohnen
Provisionspflichtig: nein
Kaution: 3 Bruttomonatsmieten
HWB: 25,90 kWh/(m²*a)
HWB Klasse: B
FGEE: 0.76
E-Ausweis Gültig Bis:: 29.04.2028
Energieausweis Art: Bedarf
Balkon/Terrassen - Fläche: 8
Beziehbar: sofort
Etage: 1. DG
WC: 1
Abstellräume: 1
barrierefrei
Neubau
Personenaufzug
Parkett
Badewanne
Fußbodenheizung
Klimaanlage
Fernwärme
Tiefgarage
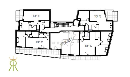
Geschossplan
Geschossplan

Ähnliche Objekte

vergleichen
20251202_110056
PROVISIONSFREI

3-Zimmer Wohnung im Zentrum von Bad Vöslau

€ 1.028.51
3
Schlafzimmer
1
Badezimmer
88 m2
Größe
April 15, 2026
vergleichen
2W72eM4GXOHpjVTr5tpFgC
PROVISIONSFREI

Wohnen in Verbundenheit – Raumwunder m...

€ 1.225.72
3
Schlafzimmer
1
Badezimmer
66 m2
Größe
April 15, 2026

Vergleichen