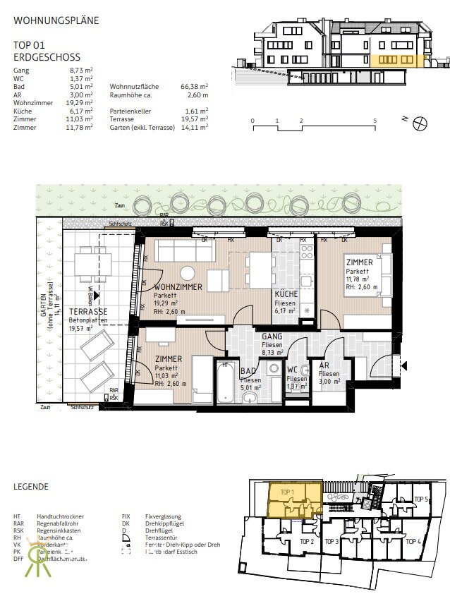
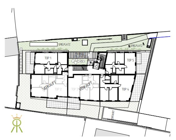
Objektbeschreibung
Herzlich willkommen bei einem niveauvollen Projekt im Herzen von Bad Vöslau, welches zwischen Hochstraße und Hügelgasse errichtet wurde.
Die angebotene Wohnung B Top 1 verfügt über zwei Schlafzimmer und ein Wohn- Esszimmer. Der Grundriss ist sehr kompakt geschnitten, die Terrasse dafür großzügig gehalten. Optimal für jene, die erdverbunden wohnen möchten,
Mehr lesen
Adresse: Hügelgasse 21
Ort: Bad Vöslau
Bezirk: 2540
Bundesland: Niederösterreich
PLZ: 2540
Land: Österreich
Objekt ID: 3150054
Preis: € 1.225.72
Nutzfläche: 66 m2
Gesamtfläche: 86 m2
Ziimmer insgesamt: 3
Schlafzimmer: 3
Badezimmer: 1
Miete/m2 €: 10.91
Miete (netto) €: 938
USt €: 119.46
Gesamtbelastung €: 1225.72
Nutzungsart: Wohnen
Provisionspflichtig: nein
Kaution: 3 Bruttomonatsmieten
HWB: 25,90 kWh/(m²*a)
HWB Klasse: B
FGEE: 0.76
E-Ausweis Gültig Bis:: 29.04.2028
Energieausweis Art: Bedarf
Balkon/Terrassen - Fläche: 19
Beziehbar: sofort
Etage: EG
WC: 1
barrierefrei
Neubau
Personenaufzug
Badewanne
Fernheizung
Tiefgarage
Ähnliche Objekte
3-Zimmer Wohnung im Zentrum von Bad Vöslau
€ 1.028.51
3
Schlafzimmer
1
Badezimmer
88 m2
Größe
April 15, 2026
Wohnen in Verbundenheit – charmante 2 ...
€ 1.134.69
2
Schlafzimmer
1
Badezimmer
63 m2
Größe
April 15, 2026

















