Objektbeschreibung
Es stehen 6 Wohneinheiten in einem modern gestalteten Gebäude zur Verfügung, das sich in einem ruhigen und attraktiven Teil der Ortschaft befindet. Das Gebäude besteht aus drei Etagen.
Verfügbare Wohnungen:
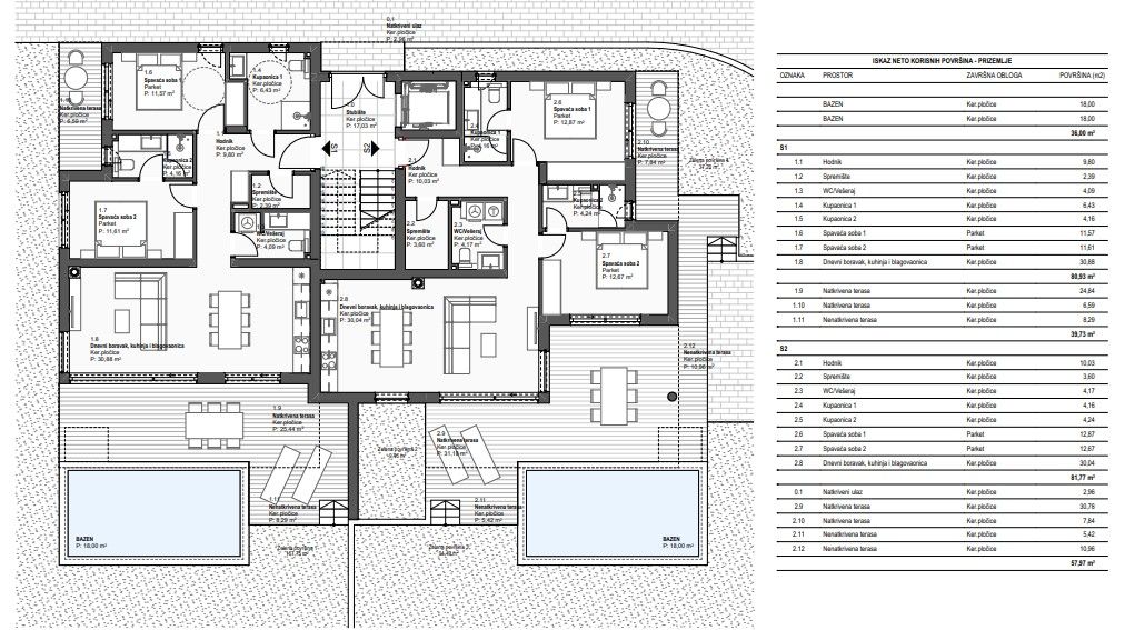
Erdgeschoss:
Wohnung S1 – 120,40 m² – 505.680 € (geeignet für Personen mit eingeschränkter Mobilität)
Wohnung S2 – 122,22
Mehr lesen
Objekt ID: 3290704
Preis: € 397.536
Nutzfläche: 0 m2
Gesamtfläche: 0 m2
Ziimmer insgesamt: 3
Schlafzimmer: 3
Badezimmer: 2
Nutzungsart: Wohnen
Provisionspflichtig: ja
WC: 1














