Objektbeschreibung
Eine Wohnung steht in Tribunj, einem der begehrtesten Orte an der dalmatinischen Küste, zum Verkauf. Dieses authentische Fischerdorf in der Nähe von Vodice und Šibenik ist bekannt für sein kristallklares Meer, mediterranes Flair, gepflegte Strände und eine ruhige Umgebung – ideal zum Wohnen oder für den Urlaub.
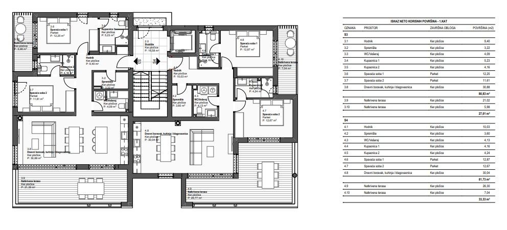
Die Wohnung befindet
Mehr lesen
Objekt ID: 3290736
Preis: € 414.100
Nutzfläche: 0 m2
Gesamtfläche: 0 m2
Ziimmer insgesamt: 3
Schlafzimmer: 3
Badezimmer: 2
Nutzungsart: Wohnen
Provisionspflichtig: ja
WC: 1












