Objektbeschreibung
Wir präsentieren Ihnen ein interessantes Bauträger-Projekt in 1230 Wien (Liesing – Siebenhirten – Nähe Vösendorf)!
– Eckgrundstück mit 506 m² GFL
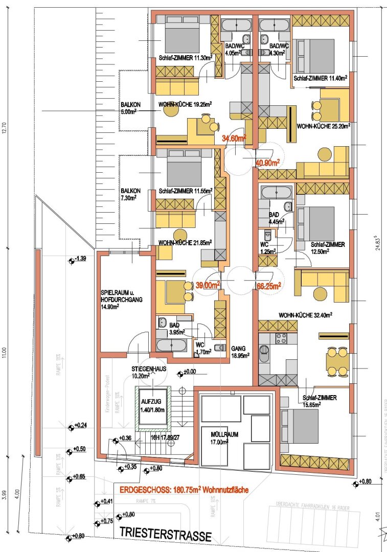
– Bebauungs-Studie vorhanden: erzielbare WFL 1.215 m²
– 26 Wohnungen (35 – 85 m²)
– 10 PKW-Stellplätze im KG
– alle Anschlüsse vorhanden
Kaufpreis: VB € 1,390.000,-
Die Bebauungs-Studie
Mehr lesen
Objekt ID: 3356532
Preis: € 1.390.000
Nutzfläche: 1.215 m2
Gesamtfläche: 606 m2
Ziimmer insgesamt: 0
Schlafzimmer: 0
Badezimmer: 0
Nutzungsart: Anlage
Provisionspflichtig: ja
Provision: 3% des Kaufpreises zzgl. 20% USt.
Ähnliche Objekte
FRÜHLINGSAKTION BIS 30.04.2026 – PREIS...
€ 507.900
4
Schlafzimmer
2
Badezimmer
149 m2
Größe
April 30, 2026
FRÜHLINGSAKTION BIS 30.04.2026 – PREIS...
€ 507.900
4
Schlafzimmer
2
Badezimmer
149 m2
Größe
April 30, 2026
FRÜHLINGSAKTION BIS 30.04.2026 – PREIS...
€ 507.900
4
Schlafzimmer
2
Badezimmer
149 m2
Größe
April 30, 2026













