Objektbeschreibung
Galerie zum Burgstall! Eine der ersten Adressen für Geschäfte, Gastronomie, Büro/Ordinationen und Wohnen in Vöcklabruck.
Der „Burgstall“ wurde in den letzten Jahren umfassend renoviert und modernisiert und strahlt in frischem Glanz.
Zum Verkauf stehen die Räumlichkeiten in der Galerie im 1. OG. Seit vielen Jahren wird an diesem Standort Gastronomie
Mehr lesen
Objekt ID: 365557
Preis: € 240.000
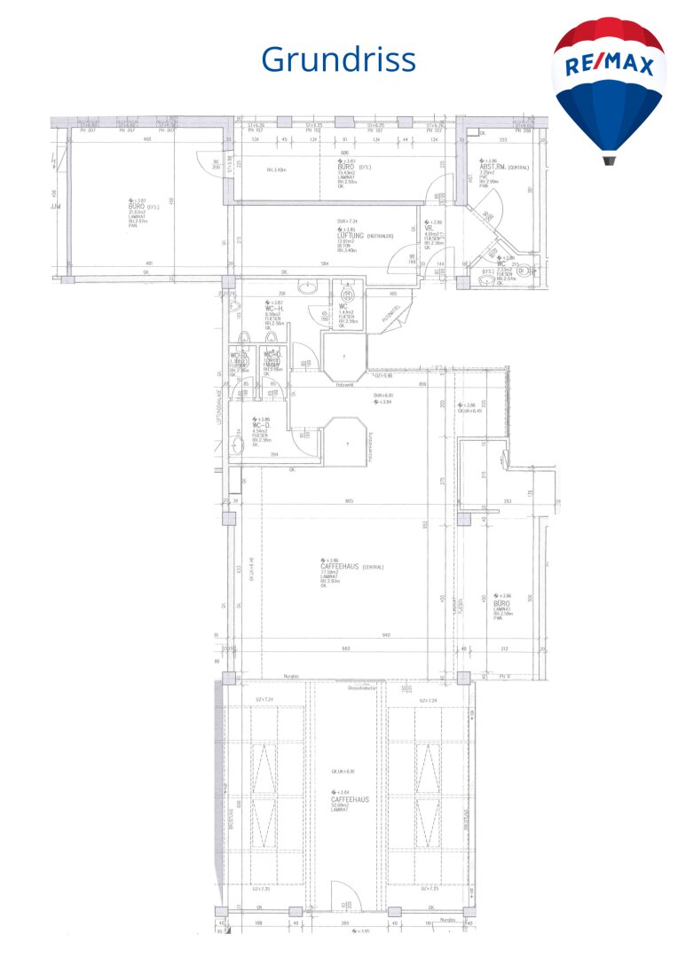
Nutzfläche: 0 m2
Gesamtfläche: 209 m2
Ziimmer insgesamt: 0
Schlafzimmer: 0
Badezimmer: 0
Nutzungsart: Anlage
Provisionspflichtig: ja
Provision: 3% des Kaufpreises zzgl. 20% USt.
HWB: 107 kWh/(m²*a)
HWB Klasse: C
Energieausweis Art: Bedarf
Tiefgarage






