Objektbeschreibung
Jeder finanziert im Laufe seines Lebens eine Immobilie, entscheiden Sie selbst ob es Ihre eigene oder die des Vermieters sein soll.
Finanzierungsbeispiel für Ihr Eigenheim:
Ausgehend von einem Eigenkapitaleinsatz von rd. € 50.000,- ergibt sich für dieses Objekt ein Finanzierungsbedarf von rd. € 314.000,-
mit Fixverzinsung ergibt sich eine monatliche Rate von rd. € 1.299,-
Mehr lesen
Objekt ID: 561247
Preis: € 337.500
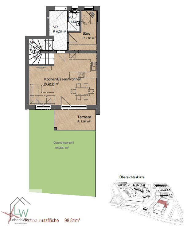
Nutzfläche: 98 m2
Gesamtfläche: 0 m2
Ziimmer insgesamt: 5
Schlafzimmer: 5
Badezimmer: 1
Nutzungsart: Anlage
Provisionspflichtig: ja
Provision: 3% des Kaufpreises zzgl. 20% USt.
HWB: 38,70 kWh/(m²*a)
HWB Klasse: B
FGEE: 0.73
E-Ausweis Gültig Bis:: 02.02.2025
Energieausweis Art: Bedarf
Balkon/Terrassen - Fläche: 8
WC: 1
Abstellräume: 1
Neubau
Bad mit Fenster
Fußbodenheizung
Abstellraum
Rollläden
Carport
Massiv
Massivbauweise
Dielen
Fernwärme
Flachdach
Ähnliche Objekte
**“Ziehen Sie um ins Eigenheim: Invest...
€ 139.000
3
Schlafzimmer
1
Badezimmer
75 m2
Größe
April 13, 2026
!! Sorgenfrei in die Pension – Ihre Vo...
€ 232.878
3
Schlafzimmer
1
Badezimmer
74 m2
Größe
März 18, 2026











