Objektbeschreibung
Diese möblierte 2-Zimmer Altbaueinheit befindet sich in einem modernisierten Gründerzeithaus aus der Jahrhundertwende. Das Objekt besticht durch die perfekte Raumaufteilung, die großzügige Terrasse, sowie die ausgezeichnete Infrastruktur und Verkehrsanbindung. In unmittelbarer Nähe befindet sich der Elterleinplatz sowie das älteste bestehende Hallenbad Wiens – das Jörgerbad. In nur wenigen Gehminuten erreichen
Mehr lesen
Objekt ID: 90278
Preis: € 249.000
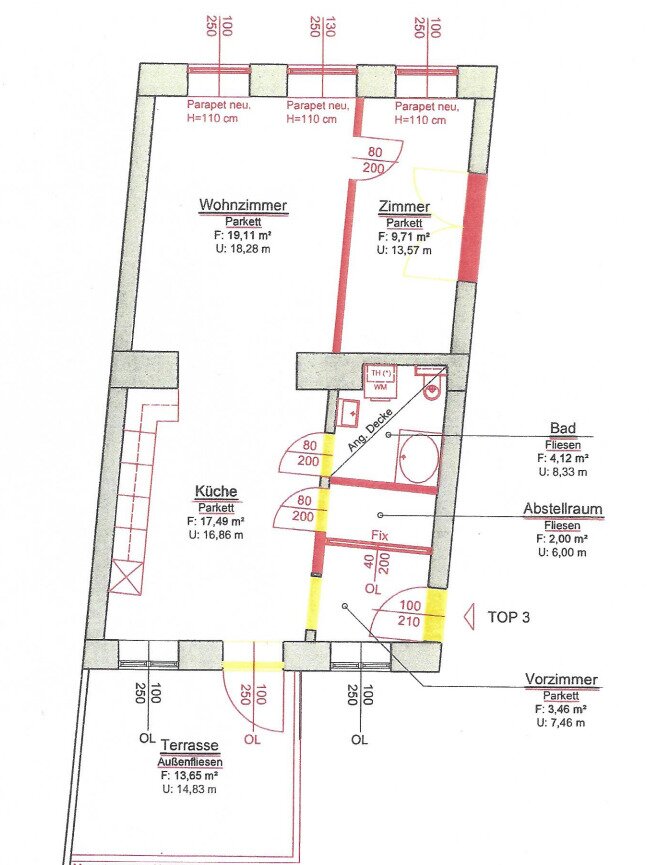
Nutzfläche: 56 m2
Gesamtfläche: 0 m2
Ziimmer insgesamt: 2
Schlafzimmer: 2
Badezimmer: 1
Nutzungsart: Gewerbe
Provisionspflichtig: ja
Provision: 3% des Kaufpreises zzgl. 20% USt.
HWB: 95,70 kWh/(m²*a)
HWB Klasse: C
FGEE: 1.63
E-Ausweis Gültig Bis:: 12.06.2030
Energieausweis Art: Bedarf
Balkon/Terrassen - Fläche: 13
Beziehbar: sofort
Etage: EG
WC: 1
Abstellräume: 1
Personenaufzug
Altbau
Etagenheizung
Gas
Parkett
Dusche
teilmöbliert
Fahrradraum
offene Küche
Abstellraum
Offene Küche
vollerschlossen
Ähnliche Objekte
NEUER PREIS I 3-Zimmer Büro mit großer Dacht...
€ 359.000
3
Schlafzimmer
1
Badezimmer
66 m2
Größe
Dezember 16, 2025






