Objektbeschreibung
Galerie zum Burgstall! Eine der ersten Adressen für Geschäfte, Gastronomie, Büro/Ordinationen und Wohnen in Vöcklabruck.
Der „Burgstall“ wurde in den letzten Jahren umfassend renoviert und modernisiert und strahlt in frischem Glanz.
Zur Weitervermietung stehen gut sichtbare und entweder über eine Treppe oder über den Lift erreichbare Räumlichkeiten in der Galerie
Mehr lesen
Objekt ID: 2632026
Nutzfläche: 0 m2
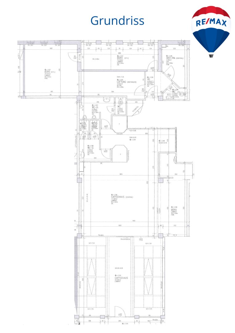
Gesamtfläche: 212 m2
Ziimmer insgesamt: 0
Schlafzimmer: 0
Badezimmer: 0
Miete/m2 €: 7.08
Miete (netto) €: 1500
USt €: 480.37
Nutzungsart: Gewerbe
Provisionspflichtig: ja
Kaution: 10.000,00 €
HWB: 107 kWh/(m²*a)
HWB Klasse: C
Energieausweis Art: Bedarf
Beziehbar: April 2026
barrierefrei
Neubau
Personenaufzug
Gäste-WC
Klimaanlage
vollerschlossen
Gastterrasse
Pissoir
Tiefgarage












