Erweiterte Suche
Suchagent aktivieren
Exklusive Anzeigen

Gewerbeobjekt in Vöcklabruck zu mieten

,

zu Favoriten hinzufügen
teilen
Suchergebnisse

Objektbeschreibung

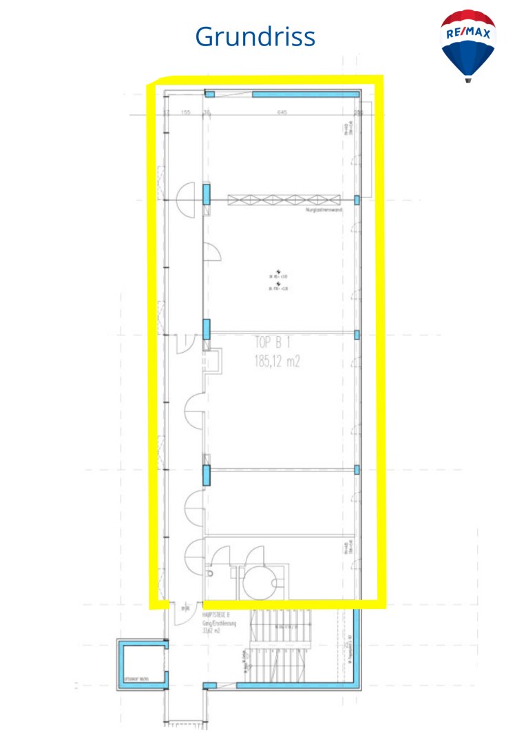
Entdecken Sie Ihre neue Büro- oder Praxisfläche in der charmanten Stadt Vöcklabruck, Oberösterreich! Diese großzügige Immobilie mit einer Fläche von 185 m² bietet Ihnen die perfekte Grundlage, um Ihre beruflichen Träume zu verwirklichen und Ihr Unternehmen zum Blühen zu bringen.

Die Lage dieser Immobilie könnte nicht besser sein. Vöcklabruck ist
Mehr lesen

Bezirk:
Bundesland:
PLZ: 4840
Land: Österreich
Objekt ID: 3224548
Nutzfläche: 0 m2
Gesamtfläche: 185 m2
Ziimmer insgesamt: 0
Schlafzimmer: 0
Badezimmer: 0
Miete (netto) €: 3000
Betriebskosten €: 330
Nutzungsart: Gewerbe
Provisionspflichtig: ja
Kaution: 9.990,00 €
HWB: 77,50 kWh/(m²*a)
HWB Klasse: C
FGEE: 1
E-Ausweis Gültig Bis:: 13.01.2035
Energieausweis Art: Bedarf
Beziehbar: sofort
Etage: 2. Etage
Neubau
Personenaufzug
Kabel/Sat-TV
teilmöbliert
Rollläden
Klimaanlage
Freiplatz
Granit
Massiv
Massivbauweise
vollerschlossen
Fernheizung
Fernwärme
Räume veränderbar
Teeküche
Flachdach

Vergleichen