Objektbeschreibung
PAG, POVLJANA – Maisonette-Wohnung mit Garten (im Bau) S2
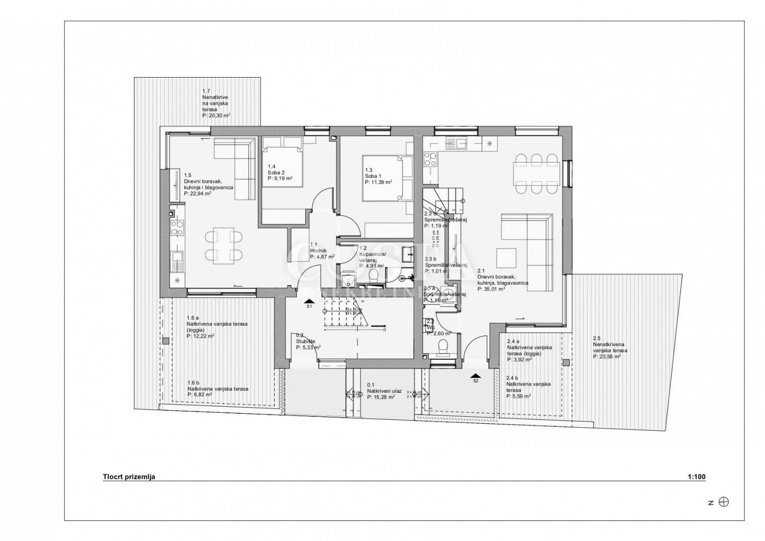
In Povljana auf der Insel Pag steht eine im Bau befindliche Maisonette-Wohnung mit Garten zum Verkauf. Die 75,85 m² große Wohnung erstreckt sich über das Erdgeschoss und den ersten Stock eines kleinen Wohnhauses mit fünf Wohneinheiten. Im Erdgeschoss befinden sich ein
Mehr lesen
Objekt ID: 2752420
Preis: € 375.970
Nutzfläche: 0 m2
Gesamtfläche: 0 m2
Ziimmer insgesamt: 4
Schlafzimmer: 4
Badezimmer: 1
Nutzungsart: Wohnen
Provisionspflichtig: ja
WC: 1











