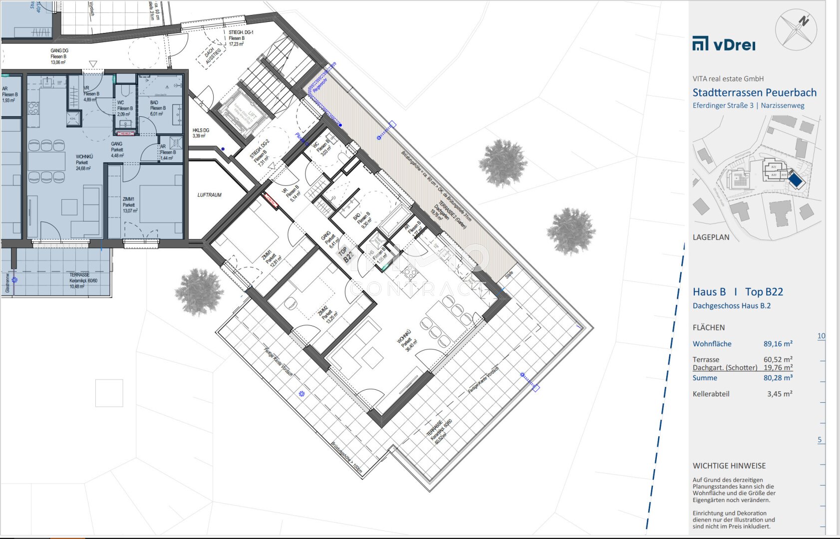
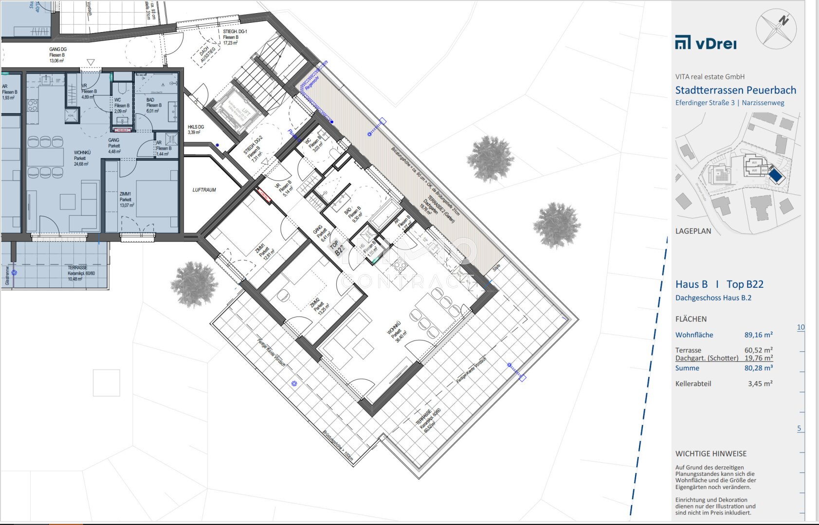
Objektbeschreibung
Im Zentrum von Peuerbach entstehen 32 Eigentumswohnungen mit einem Ausmaß von rund 35 m² bis etwa 117 m². Die „Stadtterrassen Peuerbach“ sind südwestlich ausgerichtet, erstrecken sich entlang des Narzissenweges und bieten einen schönen Ausblick über Peuerbach. Die zentrale Lage in Peuerbach ermöglicht Ihnen einen bequemen Zugang zu allen wichtigen Annehmlichkeiten
Mehr lesen
Objekt ID: 2876473
Preis: € 512.364
Nutzfläche: 89 m2
Gesamtfläche: 0 m2
Ziimmer insgesamt: 4
Schlafzimmer: 4
Badezimmer: 0
Miete/m2 €: 4075.92
Nutzungsart: Wohnen
Provisionspflichtig: nein
Provision: Provision bezahlt der Abgeber.
HWB: 48 kWh/(m²*a)
HWB Klasse: B
FGEE: 0.65
E-Ausweis Gültig Bis:: 01.08.2034
Energieausweis Art: Bedarf
Balkon/Terrassen - Fläche: 60
Beziehbar: 30.06.2027
Etage: DG

















